

- Prix
- 239 000 €
Maison neuve • Lizy-sur-Ourcq (77)
- Nom et prix
- Terrain à bâtir Lizy-sur-Ourcq (77440) • 239 000 €
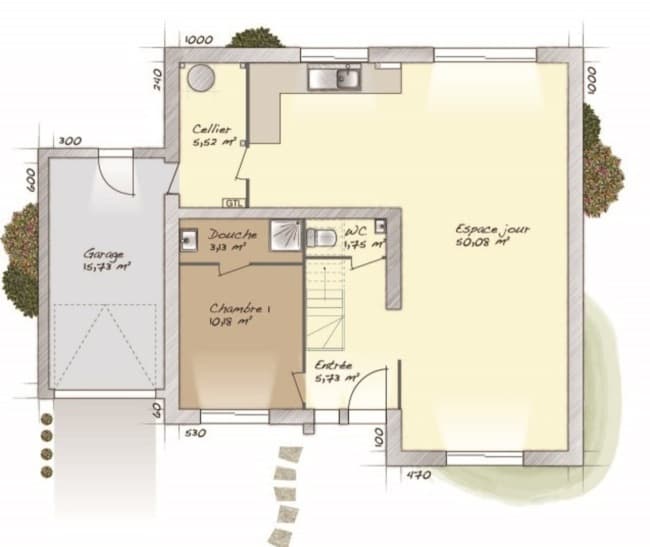
À SAISIR : Projet de construction d'une maison neuve à prix attractif sur la commune d'Isles-les-Meldeuses avec permis déjà accepté, permettant un gain de temps sur les délais d'ouverture de chantier. Vous rêvez d'accéder à la propriété sans dépasser votre budget ? Ce projet de construction de maison neuve est fait pour vous ! Idéalement située dans un quartier résidentiel calme et proche de toutes commodités, cette maison vous offre l'opportunité de concrétiser votre rêve de propriété à un prix abordable, sans compromis sur le confort. Caractéristiques principales du projet : • Surface habitable prévue : 96 m², bien agencée pour optimiser chaque espace • Nombre de chambres : Jusqu'à 4 chambres lumineuses, idéales pour une famille • Séjour : Salon convivial avec lumière naturelle, ouvert sur une cuisine • Salle de bain : Une salle de bain avec baignoire ou douche, personnalisable selon vos besoins • Jardin : Terrain de 211 m², suffisant pour créer un espace extérieur agréable • Garage : Un garage est intégré, deux places de parking sont déjà prévu initialement Prestations incluses : • Matériaux standards de qualité : Sélection d'équipements et de finitions simples et robustes pour allier esthétique et économie • Économies d'énergie : Isolation thermique aux normes actuelles (RE 2020), permettant des factures énergétiques réduites • Personnalisation possible : Choix des couleurs et des matériaux parmi une gamme d'options abordables Pourquoi choisir ce projet ? • Un excellent rapport qualité/prix : Vous bénéficiez d'une maison neuve, bien pensée et fonctionnelle, tout en respectant votre budget • Idéal pour un premier achat : Un projet parfait pour les jeunes couples ou les familles cherchant un premier logement accessible • Cadre de vie pratique : Proche des écoles, commerces et transports pour faciliter votre quotidien Prix à partir de : 239000€ Ne manquez pas cette opportunité de devenir propriétaire sans vous ruiner ! Contactez Alexis au 06.63.28.91.79 pour plus d'informations sur ce projet de construction et découvrez comment nous pouvons adapter cette maison à vos besoins et à votre budget.










