

- Prix
- 276 900 €
Maison neuve • Neufmoutiers-en-Brie (77)
- Nom et prix
- Terrain à bâtir Neufmoutiers-en-Brie (77610) • 276 900 €
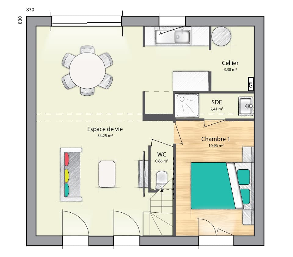
Contactez Guillaume Bordes de l'agence Maisons Evolution de Mareuil-lès-Meaux au 06.22.93.94.71 pour avoir plus d'informations sur ce projet. Maison de plain-pied d'une superficie de 71 m² habitables avec garage accolé idéalement située sur la commune de Neufmoutiers en Brie. Elle est composée de 2 chambres, d'une grande salle de bains, et d'un grand salon-séjour lumineux avec cuisine ouverte, cellier et garage. Il est possible de prévoir des combles aménageables pour le futur (et récupérer ainsi jusqu'à 40 m²) Les plans sont modifiables selon vos souhaits, en agence ou visioconférence. Nous vous proposons un véritable accompagnement de qualité tout au long de votre projet. Dessinons ensemble votre future maison ! Tel: 06.22.93.94.71










