

- Prix
- 249 000 €
Maison neuve • Saint-Jean-d'Assé (72)
- Nom et prix
- Terrain à bâtir Saint-Jean-d'Assé (72380) • 249 000 €
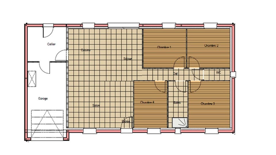
VENTE : maison T5 (100 m²) à Saint-Jean-d'Assé PROCHE DU MANS - MAISON 5 PIÈCES NEUVE À quelques kilomètres du Mans, nous sommes heureux de vous présenter à vendre à Saint-Jean-d'Assé (72380), cette maison de 5 pièces de 100 m² avec vue sur jardin. Conçue de plain-pied, elle dispose de quatre chambres, d'une cuisine et d'une salle de bains. Le terrain du bien est de 474 m². C'est une maison de plain-pied. Elle est neuve. L'École Primaire Publique Pierre Gagneau est implantée à moins de 10 minutes à pied. Côté transports en commun, on trouve six gares à moins de 10 minutes en voiture. L'autoroute A28 est accessible à 6 km. Il y a une bibliothèque, une boulangerie et une supérette à proximité de la maison. Elle est à vendre pour la somme de 249 000 €. N'hésitez pas à prendre contact avec notre agence Maine Construction Saint-Saturnin(LIVET Luc : 07-77-76-37-30) pour tout renseignement sur cette maison, sur les modalités de vente et sur les démarches à suivre.










