

- Prix
- 262 910 €
Maison neuve • FOUJU (77)
- Nom et prix
- Projet de construction d'une maison 140 m² avec terrain à FOUJU (77) • 262 910 €
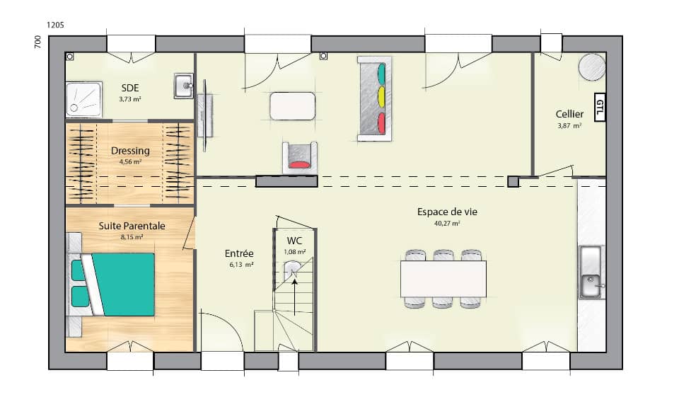
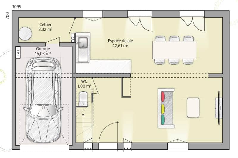
Le modèle Jupiter de 140 m² est une grande maison à étage qui fait partie de la gamme Le Pavillon Français, il se distingue par sa construction en brique pour une performance thermique optimale. Son architecture contemporaine allie classicisme et élégance : son toit a quatre pentes, son balcon filant à l’avant surmontant un porche couvert et l’habillage graphique des façades lui donnent un cachet certain. Les proportions de cette maison permettent un aménagement intérieur très fonctionnel et modulable, et privilégient les apports de lumière naturelle, avec de larges baies vitrées dans les pièces à vivre. Au rez-de-chaussée, un vaste séjour traversant, donnant sur une cuisine ouverte et dinatoire (avec un cellier), une première chambre indépendante et sa salle d’eau privative, ainsi qu’un WC indépendant. À l’étage, trois autres chambres, dont une spacieuse suite parentale, avec dressing et salle d’eau privative ainsi qu’un accès au balcon, une salle de bain et un WC indépendant. Les différentes pièces sont desservies par un grand et lumineux palier au sommet des escaliers, constituant une pièce supplémentaire, espace de jeu, de détente ou autre, selon vos envies et modes de vie, et qui ouvre également sur le balcon. Le Pavillon Français construit des maisons sur-mesure alliant design, caractère et qualité depuis plus de 30 ans. Chaque projet est unique : vous choisissez la configuration, les matériaux, les finitions… nous concrétisons votre vision. Nos constructions sont encadrées par le CCMI, un contrat garantissant un prix définitif et des délais de livraison précis. Grâce à notre certification NF Habitat, vous bénéficiez d’un haut niveau de confort, de performance et de durabilité. Avec un accompagnement personnalisé à chaque étape, nous faisons de votre maison un lieu unique qui vous ressemble. Faites confiance à un constructeur expérimenté, à l’écoute et engagé à vos côtés pour bâtir la maison de vos rêves. Construction aux normes RE2020. Prix avec assurance dommages-ouvrage comprise, hors VRD, terrain non viabilisé, frais de notaire non compris, frais divers non compris. Terrain sélectionné et vu pour vous sous réserve de disponibilité et au prix indiqué par notre partenaire foncier. Conditions et visuels non contractuels. Cette annonce a été créée et diffusée avec le logiciel VITAHOME. Contactez Morgan CIPRES au 06 45 78 50 27 (Le Pavillon Français - Agence de Dammarie-les-Lys).












