

- Prix
- 299 500 €
Maison neuve • Saint-Mesmes (77)
- Nom et prix
- Terrain à bâtir Saint-Mesmes (77410) • 299 500 €
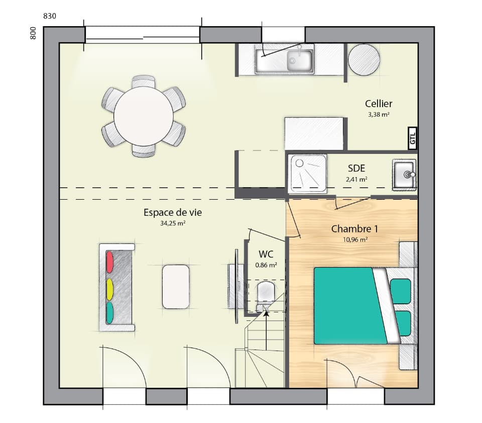
Contactez Guillaume Bordes de l'agence Maisons Evolution de Mareuil-lès-Meaux au 06.22.93.94.71 pour avoir plus d'informations sur ce projet. Belle maison à étage de 80 m² habitables avec garage accolé en option, idéalement située sur la commune de Saint-Mesmes. Elle est composée de 3 chambres, d'une salle de bains, de deux WC, et d'un grand salon-séjour lumineux avec cuisine ouverte, cellier et garage accolé. Les plans sont modifiables selon vos souhaits, en agence ou visioconférence. Nous vous proposons un véritable accompagnement de qualité tout au long de votre projet. Dessinons ensemble votre future maison ! Tel: 06.22.93.94.71











