logo de nos-terrains.com

550 maisons neuves à vendre à Cox (31)

Résultats de recherche

Maison neuve - Projet de construction d'une maison 88 m² avec terrain à COLOGNE (32) au prix de 195700€. à COLOGNE (32), prix 135 700 €
135 700 €
88 m²
1542 €/m²

Maison neuveCOLOGNE (32)

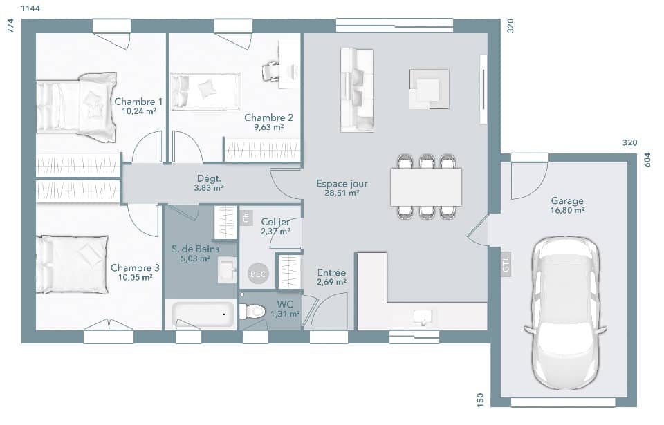
Construisons ensemble votre maison dans un environnement calme et agréable à vivre sur ce terrain (apporté par notre partenaire foncier sous réserve de disponibilité), d’une superficie de 630 m². D'un style épuré, fonctionnel et élégant, cette maison est modifiable et personnalisable comme tous les modèles Villas et Maisons de France. Le modèle UP, présenté ici, dispose d'une surface habitable de 88 m², d'un RDC intégralement dédié à l'espace de vie et comprenant un grand séjour lumineux, agrémenté d'une cuisine ouverte ou traditionnelle avec cellier accolé. L'aménagement intérieur est facilement modulable et de nombreux rangements sont possibles. A l'étage, 3 chambres de 10 à 12 m² et une salle de bain confortable composent le coin nuit. Avec un process de haute qualité environnementale, Villas et Maisons de France conçoit et construit votre maison sur-mesure tout en réduisant de façon significative son empreinte carbone. RE 2020, étiquette énergie A, tri sélectif et valorisation des déchets sont garantis. Notre label Properméa atteste de la qualité de notre traitement de l’étanchéité à l’air. Vous bénéficierez aussi d'un accompagnement pour l’ensemble de vos démarches, de l’accord de prêt à l’obtention du permis de construire en passant par l’acte authentique d’acquisition du terrain par votre chef de projet. Enfin, notre Contrat de Construction de Maison Individuelle CCMI vous permettra de bénéficier de toutes ses garanties et assurances. Choisissez la sécurité d'un grand nom et la proximité d'une entreprise régionale, contacter votre chef de projet Arnaud MERCIER au 06 20 74 42 73, spécialiste de la Maison Individuelle avec process de haute qualité environnementale en Occitanie. Prix avec assurance dommages-ouvrage comprise, VRD non compris, terrain viabilisé, frais de notaire non compris, frais divers non compris. Terrain sélectionné et vu pour vous sous réserve de disponibilité et au prix indiqué par notre partenaire foncier. Plans contractuels, visuels non contractuels. Cette annonce a été créée et diffusée avec le logiciel VITAHOME. Contactez Arnaud MERCIER au 06 20 74 42 73 ou au 05 34 48 00 00 (Villas et Maisons de France).

Proposé par VILLAS ET MAISONS DE FRANCE

Maison neuve - Projet de construction d'une maison 73 m² avec terrain à COLOGNE (32) au prix de 177300€. à COLOGNE (32), prix 117 300 €
117 300 €
73 m²
1607 €/m²

Maison neuveCOLOGNE (32)

Nous construisons votre maison sur-mesure dans un environnement calme sur ce terrain (apporté par notre partenaire foncier sous réserve de disponibilité), d’une superficie de 630 m² situé à COLOGNE. D'un style sobre mais tendance, cette maison reste modifiable et personnalisable comme tous les modèles Villas et Maisons de France. Dans sa version catalogue, ce modèle dispose de 73 m² de surface habitable. Fonctionnel, son aménagement intérieur comprend un coin nuit avec 2 belles chambres entre 11 et 12m² complétées d'une salle de bain de 4,30 m². La pièce à vivre, lumineuse, de près de 40 m², comprend salon et salle à manger. La cuisine ouverte prolonge ce sentiment de confort et prévoit des rangements significatifs dans le cellier. Notre bureau d’étude spécialisé établit vos plans uniques en nos locaux, sans délai et vous accueille sur rendez-vous pour découvrir les coulisses de la conception de votre maison. Villas et Maisons de France vous apporte la sécurité du Contrat de Construction de Maison Individuelle (CCMI), en vous délivrant Garantie de Livraison, Assurance Décennale et Dommages Ouvrage, Garantie de Parfait Achèvement et de Bon Fonctionnement. Nos équipes commerciales vous accompagnent pour l’accord de prêt, l’obtention du permis de construire et l’acte authentique d’acquisition du terrain. Enfin, constructeur certifié Properméa et avec un process de haute qualité environnementale, Villas et Maisons de France se distingue par d'excellentes performances environnementales et énergétiques en respectant un cahier des charges contraignant ! Faites le choix de la qualité, de la personnalisation et de l'innovation, Contactez Arnaud MERCIER au 06 20 74 42 73 . Prix avec assurance dommages-ouvrage comprise, VRD non compris, terrain viabilisé, frais de notaire non compris, frais divers non compris. Terrain sélectionné et vu pour vous sous réserve de disponibilité et au prix indiqué par notre partenaire foncier. Plans contractuels, visuels non contractuels. Cette annonce a été créée et diffusée avec le logiciel VITAHOME. Contactez Arnaud MERCIER au 06 20 74 42 73 ou au 05 34 48 00 00 (Villas et Maisons de France).

Proposé par VILLAS ET MAISONS DE FRANCE

Maison neuve - Projet de construction d'une maison 88 m² avec terrain à PELLEPORT (31) au prix de 188700€. à PELLEPORT (31), prix 135 700 €
135 700 €
88 m²
1542 €/m²

Maison neuvePELLEPORT (31)

Construisons ensemble votre maison dans un environnement calme et agréable à vivre sur ce terrain (apporté par notre partenaire foncier sous réserve de disponibilité), d’une superficie de 1100 m². D'un style épuré, fonctionnel et élégant, cette maison est modifiable et personnalisable comme tous les modèles Villas et Maisons de France. Le modèle UP, présenté ici, dispose d'une surface habitable de 88 m², d'un RDC intégralement dédié à l'espace de vie et comprenant un grand séjour lumineux, agrémenté d'une cuisine ouverte ou traditionnelle avec cellier accolé. L'aménagement intérieur est facilement modulable et de nombreux rangements sont possibles. A l'étage, 3 chambres de 10 à 12 m² et une salle de bain confortable composent le coin nuit. Avec un process de haute qualité environnementale, Villas et Maisons de France conçoit et construit votre maison sur-mesure tout en réduisant de façon significative son empreinte carbone. RE 2020, étiquette énergie A, tri sélectif et valorisation des déchets sont garantis. Notre label Properméa atteste de la qualité de notre traitement de l’étanchéité à l’air. Vous bénéficierez aussi d'un accompagnement pour l’ensemble de vos démarches, de l’accord de prêt à l’obtention du permis de construire en passant par l’acte authentique d’acquisition du terrain par votre chef de projet. Enfin, notre Contrat de Construction de Maison Individuelle CCMI vous permettra de bénéficier de toutes ses garanties et assurances. Choisissez la sécurité d'un grand nom et la proximité d'une entreprise régionale, contacter votre chef de projet Arnaud MERCIER au 06 20 74 42 73, spécialiste de la Maison Individuelle avec process de haute qualité environnementale en Occitanie. Prix avec assurance dommages-ouvrage comprise, VRD non compris, terrain viabilisé, frais de notaire non compris, frais divers non compris. Terrain sélectionné et vu pour vous sous réserve de disponibilité et au prix indiqué par notre partenaire foncier. Plans contractuels, visuels non contractuels. Cette annonce a été créée et diffusée avec le logiciel VITAHOME. Contactez Arnaud MERCIER au 06 20 74 42 73 ou au 05 34 48 00 00 (Villas et Maisons de France).

Proposé par VILLAS ET MAISONS DE FRANCE

Maison neuve - Projet de construction d'une maison 73 m² avec terrain à PELLEPORT (31) au prix de 170300€. à PELLEPORT (31), prix 117 300 €
117 300 €
73 m²
1607 €/m²

Maison neuvePELLEPORT (31)

Nous construisons votre maison sur-mesure dans un environnement calme sur ce terrain (apporté par notre partenaire foncier sous réserve de disponibilité), d’une superficie de 1100 m² situé à PELLEPORT. D'un style sobre mais tendance, cette maison reste modifiable et personnalisable comme tous les modèles Villas et Maisons de France. Dans sa version catalogue, ce modèle dispose de 73 m² de surface habitable. Fonctionnel, son aménagement intérieur comprend un coin nuit avec 2 belles chambres entre 11 et 12m² complétées d'une salle de bain de 4,30 m². La pièce à vivre, lumineuse, de près de 40 m², comprend salon et salle à manger. La cuisine ouverte prolonge ce sentiment de confort et prévoit des rangements significatifs dans le cellier. Notre bureau d’étude spécialisé établit vos plans uniques en nos locaux, sans délai et vous accueille sur rendez-vous pour découvrir les coulisses de la conception de votre maison. Villas et Maisons de France vous apporte la sécurité du Contrat de Construction de Maison Individuelle (CCMI), en vous délivrant Garantie de Livraison, Assurance Décennale et Dommages Ouvrage, Garantie de Parfait Achèvement et de Bon Fonctionnement. Nos équipes commerciales vous accompagnent pour l’accord de prêt, l’obtention du permis de construire et l’acte authentique d’acquisition du terrain. Enfin, constructeur certifié Properméa et avec un process de haute qualité environnementale, Villas et Maisons de France se distingue par d'excellentes performances environnementales et énergétiques en respectant un cahier des charges contraignant ! Faites le choix de la qualité, de la personnalisation et de l'innovation, Contactez Arnaud MERCIER au 06 20 74 42 73 . Prix avec assurance dommages-ouvrage comprise, VRD non compris, terrain viabilisé, frais de notaire non compris, frais divers non compris. Terrain sélectionné et vu pour vous sous réserve de disponibilité et au prix indiqué par notre partenaire foncier. Plans contractuels, visuels non contractuels. Cette annonce a été créée et diffusée avec le logiciel VITAHOME. Contactez Arnaud MERCIER au 06 20 74 42 73 ou au 05 34 48 00 00 (Villas et Maisons de France).

Proposé par VILLAS ET MAISONS DE FRANCE

Maison neuve - Projet de construction d'une maison 88 m² avec terrain à PELLEPORT (31) au prix de 188700€. à PELLEPORT (31), prix 135 700 €
135 700 €
88 m²
1542 €/m²

Maison neuvePELLEPORT (31)

Construisons ensemble votre maison dans un environnement calme et agréable à vivre sur ce terrain (apporté par notre partenaire foncier sous réserve de disponibilité), d’une superficie de 1100 m². D'un style épuré, fonctionnel et élégant, cette maison est modifiable et personnalisable comme tous les modèles Villas et Maisons de France. Le modèle UP, présenté ici, dispose d'une surface habitable de 88 m², d'un RDC intégralement dédié à l'espace de vie et comprenant un grand séjour lumineux, agrémenté d'une cuisine ouverte ou traditionnelle avec cellier accolé. L'aménagement intérieur est facilement modulable et de nombreux rangements sont possibles. A l'étage, 3 chambres de 10 à 12 m² et une salle de bain confortable composent le coin nuit. Avec un process de haute qualité environnementale, Villas et Maisons de France conçoit et construit votre maison sur-mesure tout en réduisant de façon significative son empreinte carbone. RE 2020, étiquette énergie A, tri sélectif et valorisation des déchets sont garantis. Notre label Properméa atteste de la qualité de notre traitement de l’étanchéité à l’air. Vous bénéficierez aussi d'un accompagnement pour l’ensemble de vos démarches, de l’accord de prêt à l’obtention du permis de construire en passant par l’acte authentique d’acquisition du terrain par votre chef de projet. Enfin, notre Contrat de Construction de Maison Individuelle CCMI vous permettra de bénéficier de toutes ses garanties et assurances. Choisissez la sécurité d'un grand nom et la proximité d'une entreprise régionale, contacter votre chef de projet Arnaud MERCIER au 06 20 74 42 73, spécialiste de la Maison Individuelle avec process de haute qualité environnementale en Occitanie. Prix avec assurance dommages-ouvrage comprise, VRD non compris, terrain viabilisé, frais de notaire non compris, frais divers non compris. Terrain sélectionné et vu pour vous sous réserve de disponibilité et au prix indiqué par notre partenaire foncier. Plans contractuels, visuels non contractuels. Cette annonce a été créée et diffusée avec le logiciel VITAHOME. Contactez Arnaud MERCIER au 06 20 74 42 73 ou au 05 34 48 00 00 (Villas et Maisons de France).

Proposé par VILLAS ET MAISONS DE FRANCE

Maison neuve - Projet de construction d'une maison 73 m² avec terrain à PELLEPORT (31) au prix de 170300€. à PELLEPORT (31), prix 117 300 €
117 300 €
73 m²
1607 €/m²

Maison neuvePELLEPORT (31)

Nous construisons votre maison sur-mesure dans un environnement calme sur ce terrain (apporté par notre partenaire foncier sous réserve de disponibilité), d’une superficie de 1100 m² situé à PELLEPORT. D'un style sobre mais tendance, cette maison reste modifiable et personnalisable comme tous les modèles Villas et Maisons de France. Dans sa version catalogue, ce modèle dispose de 73 m² de surface habitable. Fonctionnel, son aménagement intérieur comprend un coin nuit avec 2 belles chambres entre 11 et 12m² complétées d'une salle de bain de 4,30 m². La pièce à vivre, lumineuse, de près de 40 m², comprend salon et salle à manger. La cuisine ouverte prolonge ce sentiment de confort et prévoit des rangements significatifs dans le cellier. Notre bureau d’étude spécialisé établit vos plans uniques en nos locaux, sans délai et vous accueille sur rendez-vous pour découvrir les coulisses de la conception de votre maison. Villas et Maisons de France vous apporte la sécurité du Contrat de Construction de Maison Individuelle (CCMI), en vous délivrant Garantie de Livraison, Assurance Décennale et Dommages Ouvrage, Garantie de Parfait Achèvement et de Bon Fonctionnement. Nos équipes commerciales vous accompagnent pour l’accord de prêt, l’obtention du permis de construire et l’acte authentique d’acquisition du terrain. Enfin, constructeur certifié Properméa et avec un process de haute qualité environnementale, Villas et Maisons de France se distingue par d'excellentes performances environnementales et énergétiques en respectant un cahier des charges contraignant ! Faites le choix de la qualité, de la personnalisation et de l'innovation, Contactez Arnaud MERCIER au 06 20 74 42 73 . Prix avec assurance dommages-ouvrage comprise, VRD non compris, terrain viabilisé, frais de notaire non compris, frais divers non compris. Terrain sélectionné et vu pour vous sous réserve de disponibilité et au prix indiqué par notre partenaire foncier. Plans contractuels, visuels non contractuels. Cette annonce a été créée et diffusée avec le logiciel VITAHOME. Contactez Arnaud MERCIER au 06 20 74 42 73 ou au 05 34 48 00 00 (Villas et Maisons de France).

Proposé par VILLAS ET MAISONS DE FRANCE


Illustration Maisons neuves en vente à proximité de Cox (31)

Maisons neuves en vente à proximité de Cox (31)

Cox, située dans le département de la Haute-Garonne (31), est un charmant village français niché au cœur de la région Occitanie. Proche de Toulouse, Cox offre un cadre de vie paisible et verdoyant, idéal pour les amateurs de nature. Le village est particulièrement apprécié pour son patrimoine historique, notamment son église romane. Investir dans une maison neuve à Cox, c'est choisir un environnement serein tout en bénéficiant de la proximité des commodités urbaines. Profitez d'un cadre de vie exceptionnel et d'un investissement immobilier prometteur.

Autres villes actives à Haute-garonne (31)


Conseils pour l'achat d'un bien immobilier

Découvrez notre sélection de maisons neuves, synonymes de confort moderne et de sérénité. Trouvez votre futur chez-vous.

L'avantage d'une maison neuve

Choisir une maison neuve, c'est bénéficier des dernières normes énergétiques (RE2020) pour des économies durables, de frais de notaire réduits, et des garanties constructeur (parfait achèvement, décennale) pour une tranquillité d'esprit.

Nos types d'annonces

Explorez nos annonces : maisons clés en main prêtes à décorer, ou programmes terrain + maison pour personnaliser certains aspects.