

- Prix
- 345 274 €
Maison neuve • Oissery (77)
- Nom et prix
- Terrain à bâtir () • 345 274 €
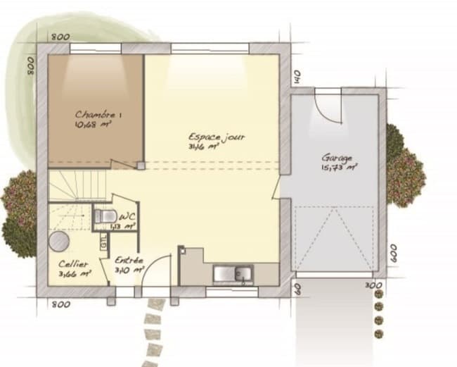
Oissery : maison de 6 pièces (98 m²) à vendre PROCHE D'AULNAY-SOUS-BOIS - MAISON 6 PIÈCES NEUVE À proximité du Transilien K (gare du Plessis-Belleville, 35 min de Paris), à vendre à Oissery (77178), nous vous proposons cette maison de 6 pièces de 98 m². Cette maison compte 2 niveaux. Son intérieur inclut quatre chambres, une cuisine et une salle de bains. Cette maison est neuve. Le terrain du bien est de 800 m². Il y a le Collège Jean des Barres à moins de 10 minutes à pied. Niveau transports, on trouve trois gares (Le Plessis-Belleville, Nanteuil-le-Haudouin et Dammartin-Juilly-Saint-Mard) à moins de 10 minutes en voiture. On trouve deux tennis, un commerce et une épicerie à quelques minutes de la maison. Elle est à vendre pour la somme de 345 274 €. Contactez Sébastien DARTEVELLE (tél : 06-24-63-58-60) pour tout renseignement sur la maison, sur les modalités de vente ou sur les démarches à suivre.