

- Prix
- 323 623 €
Maison neuve • Penchard (77)
- Nom et prix
- Terrain à bâtir () • 323 623 €
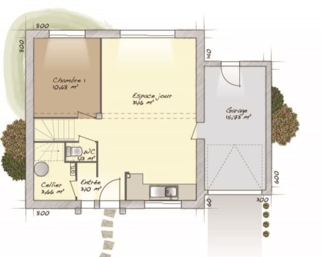
Maison de 6 pièces (98 m²) à vendre à Penchard MAISON 6 PIÈCES NEUVE - PROCHE D'AULNAY-SOUS-BOIS À proximité du Transilien P (gare de Meaux, 25 min de Paris), à vendre à Penchard (77124), notre agence Maisons Balency Dammartin-en-Goële est heureuse de vous présenter cette maison de 6 pièces de 98 m² et de 500 m² de terrain. C'est une maison de 2 niveaux. Son intérieur compte quatre chambres, une cuisine et une salle de bains. La maison est neuve. On trouve une école primaire dans le quartier. Côté transports, il y a trois gares (Meaux, Trilport et Esbly) à moins de 10 minutes en voiture. Il y a un tennis, une bibliothèque et une boulangerie à quelques minutes à peine. Elle est à vendre pour la somme de 323 623 €. Contactez Sébastien DARTEVELLE (06-24-63-58-60) pour obtenir de plus amples informations sur cette maison, sur les modalités de vente ou sur les démarches à suivre.