

- Prix
- 515 000 €
Maison neuve • Wissous (91)
- Nom et prix
- Terrain à bâtir Wissous (91320) • 515 000 €
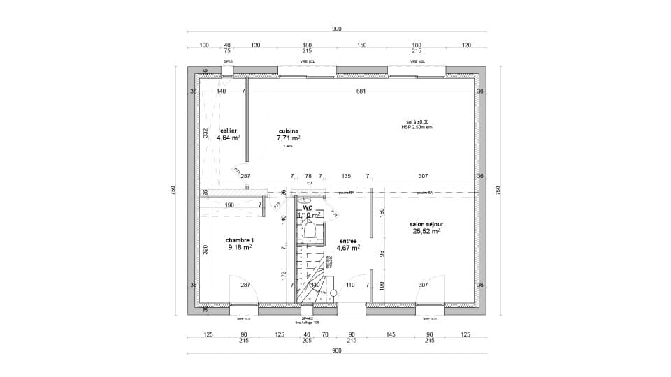
Maisons BERVAL, votre constructeur de confiance, vous propose une sélection de maisons d'exception au coeur de la commune d'Antony. Chaque modèle allie modernité, confort et élégance, conçu pour répondre à toutes vos attentes. Modèle Châtelet 128 Maison individuelle Châtelet 128 La Châtelet 128 incarne l'élégance et le confort dans une maison de 128 m² pensée pour accueillir toute votre famille. Profitez d'un grand séjour avec cheminée pour des soirées conviviales, d'une cuisine ouverte sur la salle à manger pour des repas chaleureux, d'une suite parentale avec salle de bain privative et dressing, de trois chambres supplémentaires et d'une seconde salle de bain. Le jardin paysager est un véritable havre de paix et le double garage offre tout l'espace nécessaire pour vos véhicules. Cette maison est située dans un quartier recherché, à proximité des écoles et commerces. Pourquoi choisir Maisons BERVAL ? • Expertise locale : Implantés à Antony, nous connaissons parfaitement les spécificités de la région. • Qualité supérieure : Nos maisons sont construites avec des matériaux de haute qualité et un savoir-faire reconnu. • Personnalisation : Chaque modèle peut être adapté à vos besoins et à vos goûts. N'attendez plus pour réaliser votre rêve de maison individuelle! Pour de plus amples informations veuillez contacter Sébastien LAFAYE - 06/26/89/32/04 Terrain vu avec notre partenaire foncier, sous réserves de disponibilité Prix hors frais de notaire et hors frais annexes














