

- Prix
- 620 000 €
Maison neuve • Chalifert (77)
- Nom et prix
- Terrain à bâtir Chalifert (77144) • 620 000 €
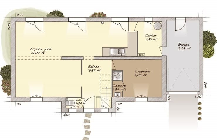
Maison de 7 pièces (160 m²) en vente à Chalifert PROCHE DE SAINT-DENIS - MAISON 7 PIÈCES NEUVE À deux pas de la gare d'Esbly (Paris à 30 min avec le Transilien P), nous vous présentons cette maison de 7 pièces de 160 m² en vente à Chalifert (77144). Son intérieur dispose de quatre chambres, d'une cuisine et de deux salles de bains. Le terrain du bien est de 621 m². C'est une maison de 2 niveaux. Elle est neuve. Il y a l'École Primaire Clos de la Fontaine à moins de 10 minutes à pied. Côté transports, on trouve la ligne de RER A (Chessy-Marne-La-Vallée) ainsi que sept gares à moins de 10 minutes en voiture. On trouve des commerces dans les environs. Elle est à vendre pour la somme de 620 000 €. Contactez Christophe MONTANIER (06-10-23-51-22) pour toute information sur la maison ou sur les démarches à suivre. Maisons Balency Saint-Maur-des-Fossés vous accompagne à toutes les étapes de votre projet et dans tous vos projets immobiliers.











