

- Prix
- 251 928 €
Maison neuve • ROISSY-EN-BRIE (77)
- Nom et prix
- Projet de construction d'une maison 120 m² avec terrain à ROISSY-EN-BRIE (77) • 251 928 €
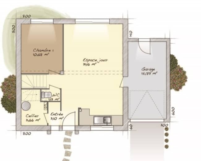
Le modèle Tanit de 120 m² est une grande maison à étage qui fait partie de la gamme Le Pavillon Français, il se distingue par sa construction en brique pour une performance thermique optimale. Son architecture traditionnelle est rehaussée par des détails à la fois élégants et orignaux : une toiture à quatre pentes, un décroché de la façade avant surmonté de sa propre toiture, et un bow-window à l’arrière, apportant un certain raffinement ainsi qu’une source de lumière naturelle. La personnalisation de l’habillage des façades permettra à chacun d’y apporter une esthétique personnelle. Ce modèle comporte 4 chambres dont une avec salle d’eau privative, et une salle de bain avec WC complète l’étage. Au rez-de-chaussée, un large vestibule dessert un grand séjour traversant ouvert sur l’extérieur grâce à de nombreuses baies vitrées, une cuisine ouverte ou fermée, un bureau et un WC. Informations du terrain : Roissy en brie, dans un quartier résidentiel,un très beau terrain constructible de 500 m² environ.Commodités de proximité ( écoles,lycée,commerces et gare) et un accès diect à la N104 et N4, la gare dessert Paris Le Pavillon Français construit des maisons sur-mesure alliant design, caractère et qualité depuis plus de 30 ans. Chaque projet est unique : vous choisissez la configuration, les matériaux, les finitions… nous concrétisons votre vision. Nos constructions sont encadrées par le CCMI, un contrat garantissant un prix définitif et des délais de livraison précis. Grâce à notre certification NF Habitat, vous bénéficiez d’un haut niveau de confort, de performance et de durabilité. Avec un accompagnement personnalisé à chaque étape, nous faisons de votre maison un lieu unique qui vous ressemble. Faites confiance à un constructeur expérimenté, à l’écoute et engagé à vos côtés pour bâtir la maison de vos rêves. Construction aux normes RE2020. Prix avec assurance dommages-ouvrage comprise, hors VRD, terrain viabilisé, frais de notaire non compris, frais divers non compris. Terrain sélectionné et vu pour vous sous réserve de disponibilité et au prix indiqué par notre partenaire foncier. Conditions et visuels non contractuels. Cette annonce a été créée et diffusée avec le logiciel VITAHOME. Contactez Patrick MATHIAS au 07 82 77 48 41 (Le Pavillon Français - Agence d'Ozoir-la-ferrière).











