

- Prix
- 228 806 €
Maison neuve • MONTHYON (77)
- Nom et prix
- Projet de construction d'une maison 131 m² avec terrain à MONTHYON (77) • 228 806 €
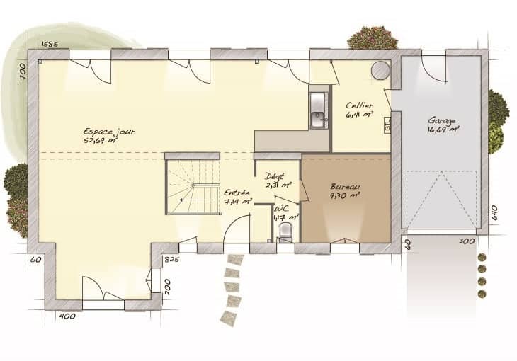
A MONTHYON sur un terrain de 912 m², MAISONS SESAME vous propose de réaliser cette maison neuve d'une surface de 131 m² habitables avec 5 chambres. Le modèle CRISTAL 130 V1 est une maison moderne de 131 m², alliant confort et praticité dans un design contemporain. Au rez-de-chaussée, une chambre pouvant être utilisée comme bureau pour télétravail, ainsi qu’un cellier pour le rangement, sont présents. Un WC complète ce niveau pour plus de commodité. À l’étage, 4 chambres, dont une suite parentale avec sa salle de douche privée, offrent un espace intime et confortable. Une salle de bain supplémentaire est partagée par les autres chambres. La maison CRISTAL 130 V1 répond aux besoins d’une famille moderne, offrant à la fois des espaces de vie fonctionnels et un espace dédié au télétravail. MAISONS SÉSAME vous propose les prestations suivantes : - Plans des maisons modulables et adaptables selon vos besoins et les spécificités de votre terrain - Large choix de systèmes de chauffage performants et économes en énergie - Sélection de matériaux de qualité garantissant confort et durabilité - Accompagnement sur-mesure pour la recherche et l’acquisition de votre terrain - Construction conforme à la réglementation en vigueur et à la norme RE2020 - Maisons certifiées NF HABITAT, gage de qualité, de performance et de confort Demandez une étude gratuite et personnalisée de votre projet de construction ! Étude gratuite de votre projet de construction ! De nombreux terrains disponibles dans votre secteur. Informations légales : Maisons Sésame, constructeur de maisons individuelles, propose une sélection de terrains en collaboration avec ses partenaires fonciers, sous réserve de disponibilité. Il n’agit pas en tant que mandataire pour la vente de ces terrains. Nos maisons, certifiées NF Habitat et conformes à la réglementation thermique en vigueur, vous garantissent un habitat durable et économe en énergie. Découvrez un large choix de modèles adaptés aux besoins de toute la famille. Informations tarifaires : Les prix indiqués sont donnés à titre indicatif et n’incluent pas les frais annexes (frais de notaire, raccordements, etc.). Les visuels et prix présentés sont non contractuels. Pour plus de détails, consultez nos conditions en agence. N° ORIAS IOBSP 13007108 – RCS Versailles 388 867 426. Les informations sur les risques auxquels ce bien est exposé sont disponibles sur le site Géorisques : www.georisques.gouv.fr Cette annonce a été créée et diffusée avec le logiciel VITAHOME. Contactez Wesley GUNGADOO au 07 62 15 62 39 ou au 01 84 29 34 10 (Maisons Sésame - Agence de Baillet en France).










