

- Prix
- 180 470 €
Maison neuve • RUE DE LA MAIRIE (77)
- Nom et prix
- Projet de construction d'une maison 97 m² avec terrain à SAINT-MAMMES (77) • 180 470 €
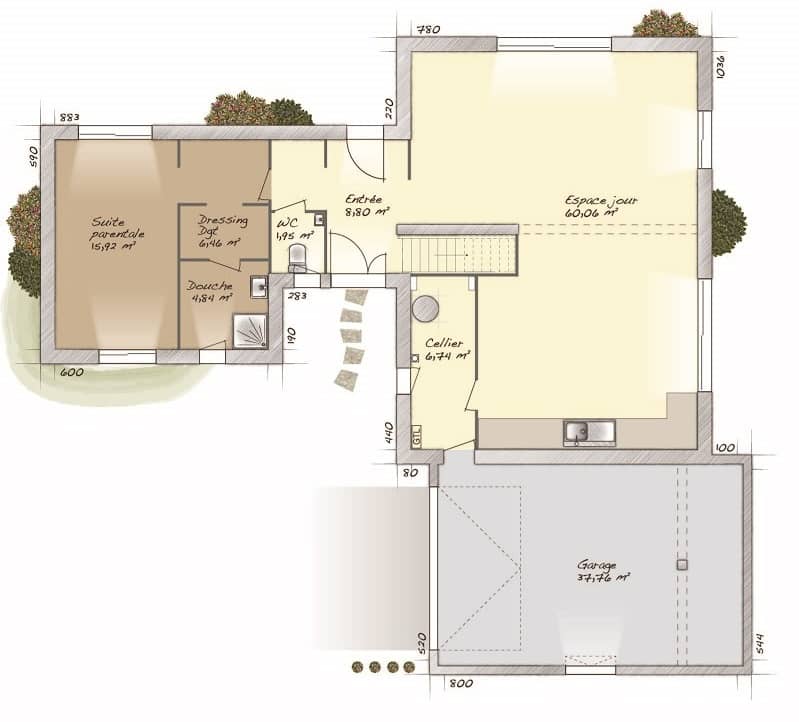
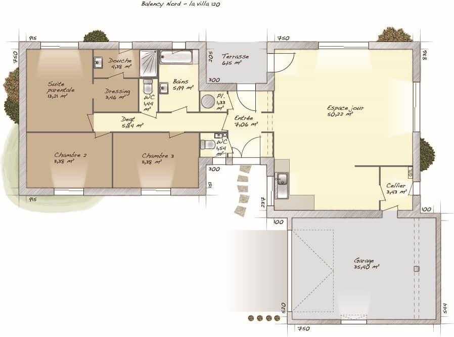
A SAINT-MAMMES sur un terrain de 466 m², MAISONS SESAME vous propose de réaliser cette maison neuve d'une surface de 97 m² habitables avec 3 chambres. Le modèle CITRINE est une maison à combles aménagés de 97 m², offrant un espace de vie pratique et moderne. Ce modèle inclut un garage intégré de 15 m², apportant un espace de rangement supplémentaire tout en préservant l’aménagement intérieur. Avec ses cinq pièces, dont trois chambres situées sous les combles, il est idéal pour une famille recherchant un agencement fonctionnel et spacieux. Au rez-de-chaussée, les pièces de vie communes sont soigneusement agencées : une véritable entrée avec placards ouvre sur un vaste séjour en L, prolongé par une cuisine ouverte. Un grand cellier vient compléter cet espace, permettant de libérer de l’espace dans la pièce à vivre et d’apporter plus de rangement. À l’étage, les trois chambres sont réparties de manière à offrir confort et intimité. La suite parentale bénéficie d’un dressing, tandis que les deux autres chambres partagent une salle de bains équipée d’une baignoire et d’une fenêtre pour plus de luminosité. Un WC séparé est également présent, ajoutant à la praticité du modèle. MAISONS SÉSAME vous propose les prestations suivantes : - Plans des maisons modulables et adaptables selon vos besoins et les spécificités de votre terrain - Large choix de systèmes de chauffage performants et économes en énergie - Sélection de matériaux de qualité garantissant confort et durabilité - Accompagnement sur-mesure pour la recherche et l’acquisition de votre terrain - Construction conforme à la réglementation en vigueur et à la norme RE2020 - Maisons certifiées NF HABITAT, gage de qualité, de performance et de confort Informations du terrain : Situé à proximité de toutes les commodités, écoles, commerces et gare, Façade d'environ 7m , A venir découvrir sans attendre . Demandez une étude gratuite et personnalisée de votre projet de construction ! Étude gratuite de votre projet de construction ! De nombreux terrains disponibles dans votre secteur. Informations légales : Maisons Sésame, constructeur de maisons individuelles, propose une sélection de terrains en collaboration avec ses partenaires fonciers, sous réserve de disponibilité. Il n’agit pas en tant que mandataire pour la vente de ces terrains. Nos maisons, certifiées NF Habitat et conformes à la réglementation thermique en vigueur, vous garantissent un habitat durable et économe en énergie. Découvrez un large choix de modèles adaptés aux besoins de toute la famille. Informations tarifaires : Les prix indiqués sont donnés à titre indicatif et n’incluent pas les frais annexes (frais de notaire, raccordements, etc.). Les visuels et prix présentés sont non contractuels. Pour plus de détails, consultez nos conditions en agence. N° ORIAS IOBSP 13007108 – RCS Versailles 388 867 426. Les informations sur les risques auxquels ce bien est exposé sont disponibles sur le site Géorisques : www.georisques.gouv.fr Cette annonce a été créée et diffusée avec le logiciel VITAHOME. Contactez José FERREIRA au 06 75 62 11 75 ou au 01 64 79 14 14 (Maisons Sésame - Agence de Dammarie-les-Lys).











