
Maison neuve • Crestot (27)
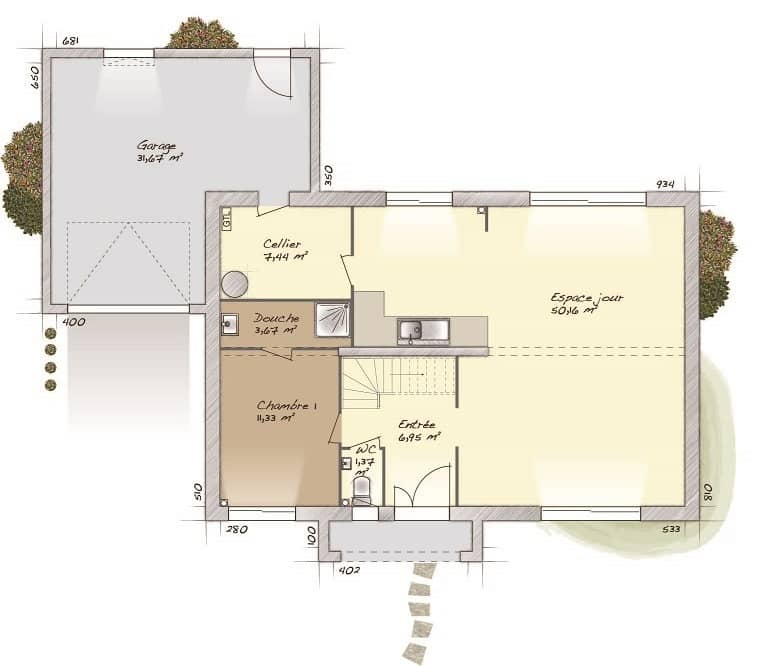
Crestot : maison T4 (109 m²) en vente MAISON 4 PIÈCES NEUVE - PROCHE DE ROUEN En vente : localisée à deux pas de Rouen, votre agence Les Maisons Extraco Pont-de-l'Arche est heureuse de vous proposer cette maison de 4 pièces de plain-pied de 109 m² et de 1 339 m² de terrain à Crestot (27110). Elle se divise en trois chambres, une cuisine et deux salles de bains. La maison est neuve. Des autoroutes et les nationales N154 et N138 sont accessibles à moins de 17 km. Il y a un commerce à proximité de la maison. Elle est à vendre pour la somme de 241 220 €. Contactez Julien THOMAS (tél : 06-69-32-53-30) pour obtenir de plus amples renseignements sur cette maison, sur les démarches à suivre ou sur les modalités de vente. Les Maisons Extraco Pont-de-l'Arche vous accompagne à toutes les étapes de l'achat et dans tous vos projets immobiliers.
Proposé par EXTRACO - Seine-Maritime










