

- Prix
- 242 600 €
Maison neuve • Rebais (77)
- Nom et prix
- Terrain à bâtir () • 242 600 €
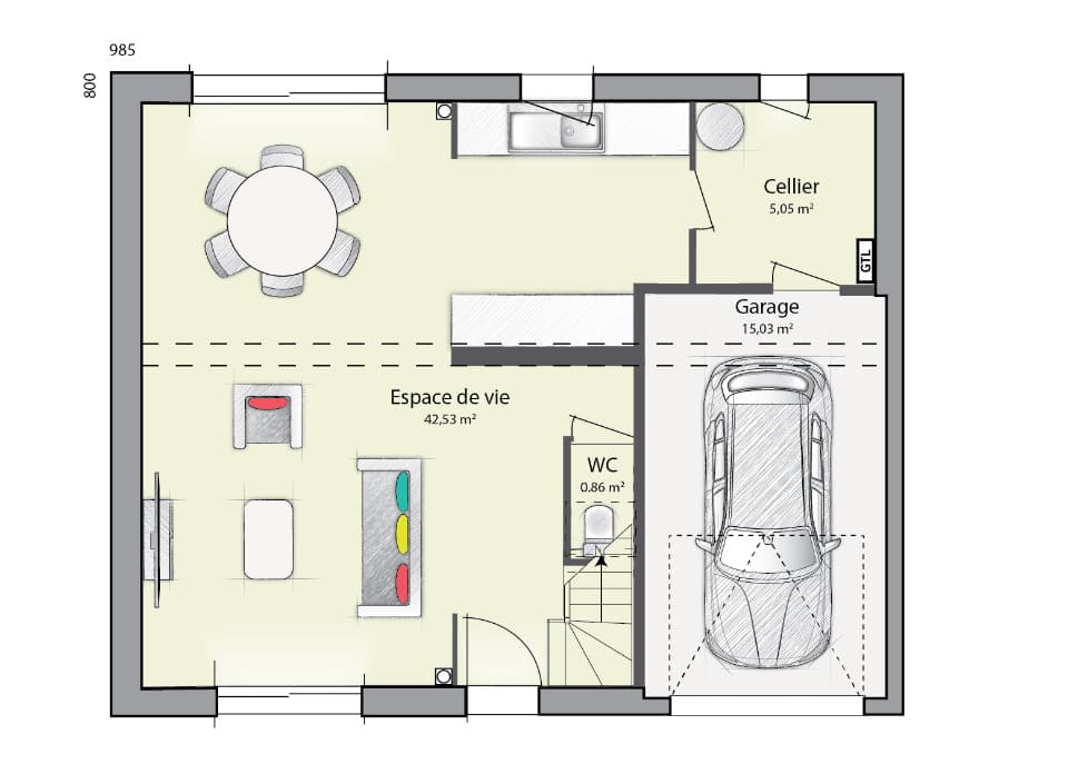
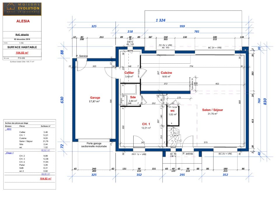
Contactez Guillaume Bordes de l'agence Maisons Evolution de Mareuil-lès-Meaux au 06.22.93.94.71 pour avoir plus d'informations sur ce projet. Venez découvrir cette belle et grande maison d'une superficie de 109 m² habitables avec garage intégré idéalement située sur la commune de Rebais. Elle est composée de 4 chambres (dont une suite parentale) de 2 salles de bains, de 2 WC, et d'un grand salon-séjour lumineux avec cuisine ouverte, cellier et garage. Les plans sont modifiables selon vos souhaits, en agence ou visioconférence. Nous vous proposons un véritable accompagnement de qualité tout au long de votre projet. Dessinons ensemble votre future maison ! Tel: 06.22.93.94.71











