

- Prix
- 495 909 €
Maison neuve • Orgeval (78)
- Nom et prix
- Terrain à bâtir () • 495 909 €
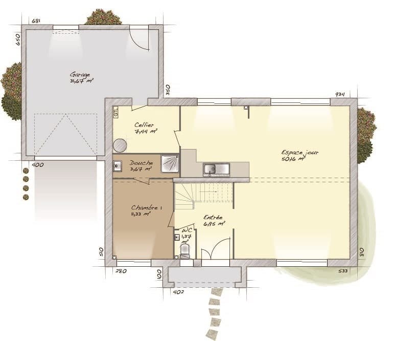
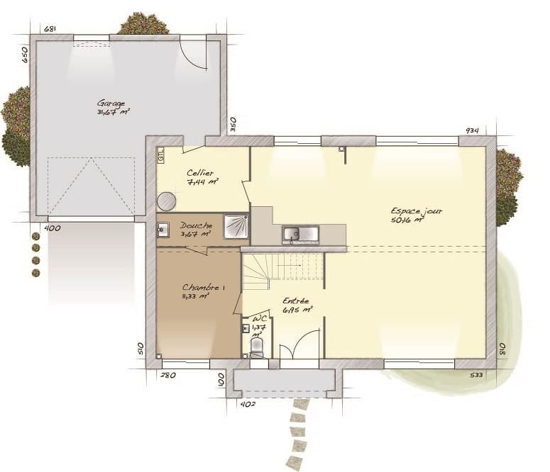
Maison de 7 pièces (160 m²) en vente à Orgeval PROCHE DE PARIS - MAISON 7 PIÈCES NEUVE En vente : proche de la gare de Villennes-sur-Seine (Paris à 20 min avec le Transilien J), à Orgeval (78630), nous sommes ravis de vous présenter cette maison de 7 pièces de 160 m². Cette maison possède 2 niveaux. Elle se divise en quatre chambres, une cuisine et deux salles de bains. Cette maison est neuve. Le terrain de la propriété s'étend sur 320 m². L'École Élémentaire Privée Sainte Jeanne d'Arc et l'École Élémentaire Louis Pasteur sont implantées à moins de 10 minutes à pied. Côté transports en commun, on trouve la ligne de RER A (Poissy) ainsi que 24 gares à moins de 10 minutes en voiture. Il y a une bibliothèque, des commerces, deux boulangeries, deux supermarchés, deux épiceries et un bureau de poste à quelques minutes de la maison. Elle est à vendre pour la somme de 495 909 €. Prenez contact avec notre agence (DUCOS Denis : 06-80-06-50-40) pour obtenir de plus amples renseignements sur la maison, sur les modalités de vente ou sur les démarches à suivre. Maisons Balency Moisselles vous accompagne dans tous vos projets immobiliers et à toutes les étapes de votre projet.











