

- Prix
- 350 000 €
Maison neuve • Mareil-en-France (95)
- Nom et prix
- Terrain à bâtir () • 350 000 €
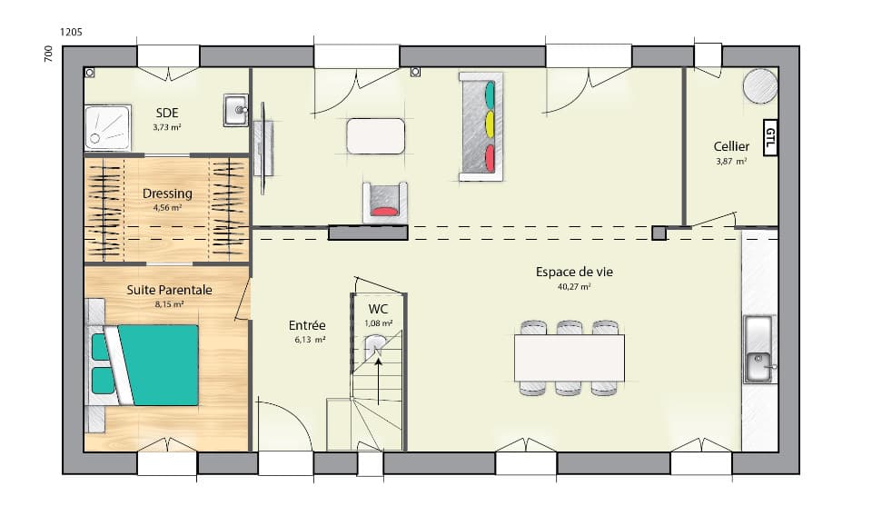
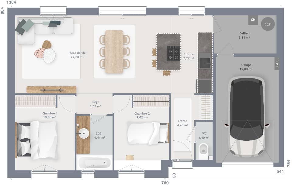
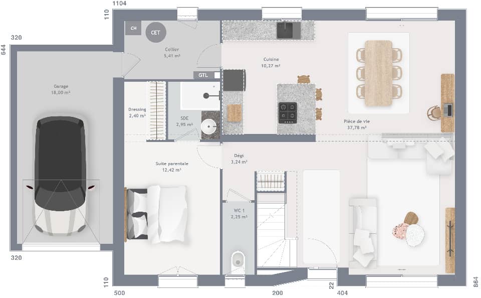
Venez concevoir votre maison sur un terrain à VILLIERS LE SEC d'une superficie de 603 m²,plat, belle façade, avec une belle exposition. Exemple de projet maison de plain pied de 70 m² avec 1 garage intégré, 2 chambres et 1 salle de bain. Tous nos projets sont entièrement réalisés sur-mesure, de nombreuses prestations incluses: baies coulissantes en aluminium, volets roulants intégrés à la maçonnerie (non-apparents) motorisés. Entrée, cuisine, pièce de vie, cellier et pièces d'eau carrelés, maison prête à décorer, clef en main. Pompe à chaleur ou pompe à chaleur hybride (gaz) dernière génération (classe énergétique A+), plancher chauffant RDC (et ETAGE), sèche-serviettes, plusieurs choix de menuiseries intérieures, construction en brique. RE 2020. Projet terrain + maison + frais annexes. Pour tout renseignement contacter XAVIER de l'agence Maisons France Confort : 06 16 27 53 27











