

- Prix
- 384 500 €
Maison neuve • Penchard (77)
- Nom et prix
- Terrain à bâtir () • 384 500 €
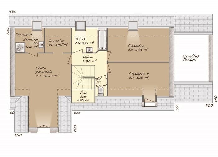
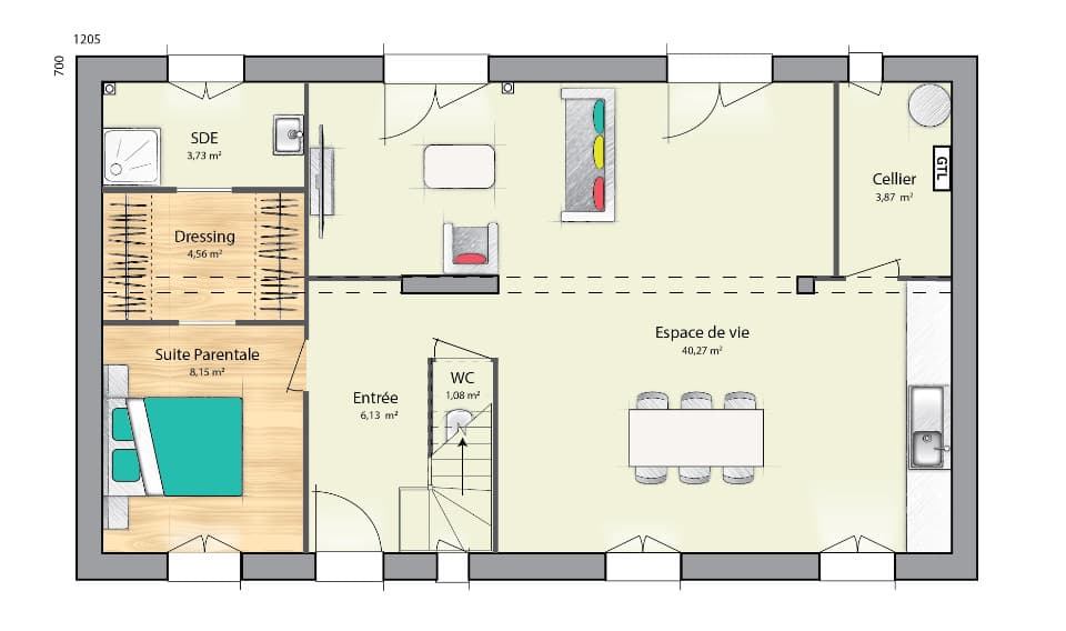
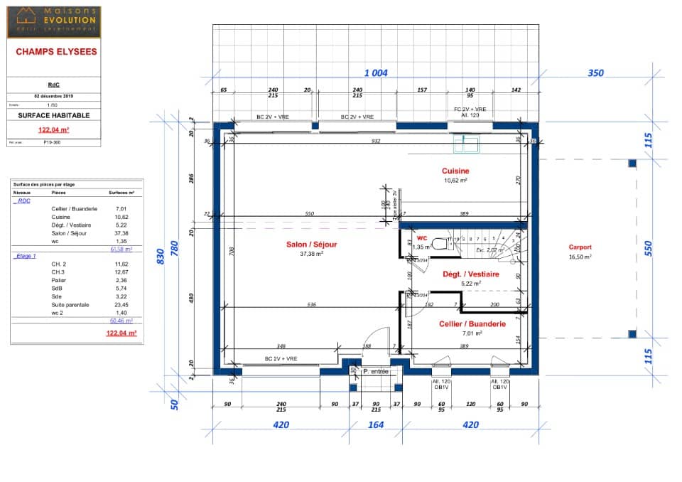
VENTE d'une maison F6 (133 m²) à Penchard PROCHE D'AULNAY-SOUS-BOIS - MAISON 6 PIÈCES NEUVE À quelques minutes du Transilien P (gare de Meaux, 25 min de Paris), Maisons Balency Dammartin-en-Goële vous présente cette maison de 6 pièces de 133 m² à Penchard (77124). Elle dispose de trois chambres, d'une cuisine et de deux salles de bains. Le terrain de cette maison s'étend sur 500 m². Il s'agit d'une maison de 2 niveaux. Elle est neuve. Il y a une école primaire dans le quartier. Niveau transports, on trouve trois gares (Meaux, Trilport et Esbly) à moins de 10 minutes en voiture. On trouve un tennis, une bibliothèque et une boulangerie à proximité. Elle est à vendre pour la somme de 384 500 €. Prenez contact avec notre agence (Sébastien DARTEVELLE : 06-24-63-58-60) pour obtenir de plus amples renseignements sur la maison ou sur les démarches à suivre. Maisons Balency Dammartin-en-Goële vous accompagne dans tous vos projets immobiliers et dans toutes vos démarches.











