

- Prix
- 319 000 €
Maison neuve • Marles-en-Brie (77)
- Nom et prix
- Terrain à bâtir Marles-en-Brie (77610) • 319 000 €
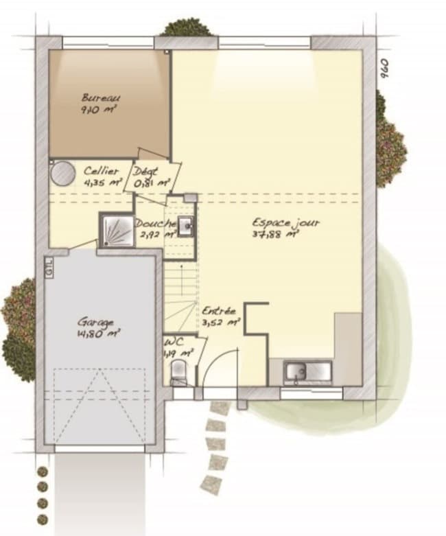
🏡 À SAISIR : Maison neuve haut de gamme à Marles en Brie Découvrez cette maison d'exception, pensée pour allier design moderne, confort absolu et équipements de pointe. 📍 Emplacement privilégié 🏡 Quartier résidentiel calme, à 2 minutes à pied du centre-ville 🚆 Proche des écoles, commerces et transports ✨ Prestations premium pour un confort inégalé ✔ Architecture contemporaine avec grandes ouvertures ✔ Matériaux haut de gamme et finitions personnalisables ✔ Chauffage au sol et domotique avancée (gestion à distance) ✔ Pompe à chaleur performante & isolation RE 2020 (éco-énergie) ✔ Possibilité de panneaux solaires pour plus d'autonomie 🛋️ Un intérieur raffiné et spacieux ✔ Séjour lumineux avec grandes baies vitrées et cuisine ouverte ✔ Jusqu'à 4 chambres ✔ Salles de bains élégantes (douche à l'italienne, baignoire, double vasque) 🌿 Extérieur à la hauteur de vos envies ✔ Terrain de 351 m², idéal pour jardin paysager, terrasse ou piscine 🛠️ Maisons Balency - Groupe HEXAOM ✅ Constructeur reconnu avec +100 ans d'expérience ✅ Matériaux de qualité et accompagnement sur-mesure ✅ Sécurité et solidité financière garanties 💰 Prix à partir de 319000 € 📞 Contactez Alexis au 06.63.28.91.79 pour plus d'infos et personnaliser votre projet !

