

- Prix
- 275 000 €
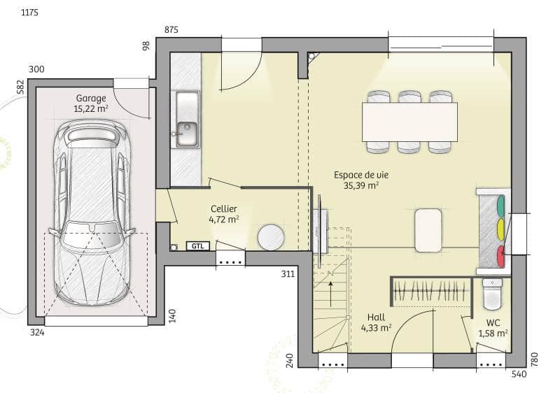
Maison neuve • Berméricourt (51)
- Nom et prix
- Terrain à bâtir Berméricourt (51220) • 275 000 €
En vente à Berméricourt maison neuve de plain-pied de 100m2 avec 4 chambres. Le modèle présenté est Open Nord PP GI 100 design, il est équipé d'une pièce de vie de 43m² ouverte sur la cuisine, d'une salle de bain avec douche et baignoire, un wc séparé, 4 chambres avec placards, un cellier et un garage. Il est possible de personnaliser ces plans afin qu'ils répondent parfaitement à vos attentes, en ajoutant par exemple une suite parentale avec dressing, ou encore en aménageant le garage en pièce supplémentaire. La construction traditionnelle aux normes RE2020 de la maison est réalisée en brique et l'ensemble des matériaux utilisés sont de qualité afin de vous assurer un investissement durable. Terrain constructible de 530m2 à Berméricourt idéalement situé au calme et proche de toutes les commodités (environnement vraiment de qualité), disposant d'une belle façade et entièrement viabilisé. Berméricourt est une commune recherchée pour son axe direct, ses commodités aux alentours et sa proximité avec Reims, Hermonville, Cormicy, Villers Franqueux, Pouillon, Thil, Chenay, Merfy, Saint Thierry, Merfy, Courcy, Brimont et Loivre. Pour plus de renseignements vous pouvez me contacter , Nicolas GUILLAUME de l'agence Maisons France Confort de Cormontreuil au 07.77.79.23.59










