

- Prix
- 205 000 €
Maison neuve • Cessenon-sur-Orb (34)
- Nom et prix
- Terrain à bâtir () • 205 000 €
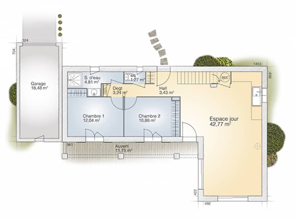
PROJET DE CONSTRUCTION - Maison F3 (70 m²) à Cessenon-sur-Orb MAISON 3 PIÈCES - PROCHE DE BÉZIERS À 34 km de la mer Méditerranée et à deux pas de Béziers, nous sommes ravis de vous proposer cette maison de 3 pièces de plain-pied de 70 m² et de 416 m² de terrain à Cessenon-sur-Orb (34460). Son intérieur comporte deux chambres, une cuisine, un cellier, une salle de bains et un garage. (Carrelage inclus dans toutes les pièces / Raccordements inclus). Il y a trois établissements scolaires à moins de 10 minutes à pied et dont le Collège Basile Rouaix, Unité Pédagogique de Proximité Collège Jean Jaurès Saint-Chinian et l'École Élémentaire les Oliviers. Il y a un accès à l'autoroute A75 à 20 km. On trouve un tennis, un supermarché, trois boulangeries, une boucherie-charcuterie et un bureau de poste dans les environs. Elle est proposée à l'achat pour 205 000 €. Pour plus d'information contacter (Anthony BALLESTER : 06.27.21.51.55) Maisons France Confort Béziers pour échanger sur votre projet et réaliser une étude gratuite. (Plan personnalisable). Tous nos ouvrages sont réalisés sur-mesure en fonction de vos attentes et de nos échanges avec vous ainsi que dans le respect de la règlementation RE 2020. Ce projet comporte les garanties suivantes: Contrat de construction CCMI. Dommage/Ouvrage. RC Garantie décennale. Parfaite achèvement. Etude de sol G2. Prix et délais convenu. Garantie financière Pour votre tranquillité nous nous occupons de toutes les formalités administratives.












