

- Prix
- 491 000 €
Maison neuve • Noisy-le-Grand (93)
- Nom et prix
- Terrain à bâtir () • 491 000 €
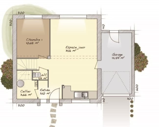
Noisy-le-Grand : maison de 4 pièces (82 m²) en vente MAISON 4 PIÈCES NEUVE En vente : à deux pas du RER A (station Noisy-le-Grand-Mont d'Est, 15 min de Paris), à Noisy-le-Grand (93160), notre agence Maisons Balency Saint-Maur-des-Fossés est heureuse de vous proposer cette maison de 4 pièces de 82 m². Son intérieur inclut trois chambres, une cuisine et une salle de bains. Le terrain du bien s'étend sur 270 m². C'est une maison de 2 niveaux. Elle est neuve. Des établissements scolaires (de la maternelle au lycée) sont implantés à moins de 10 minutes à pied, tout comme deux structures d'accueil pour les tout-petits. Côté transports, on trouve trois lignes de RER (A, E et B) ainsi que 26 gares à moins de 10 minutes en voiture. Il y a un bassin de natation, un tennis, des commerces, des boulangeries, trois supermarchés, des épiceries et un bureau de poste à quelques minutes. Elle est à vendre pour la somme de 491 000 €. N'hésitez pas à prendre contact avec Aurelien MONTANIER (tél : 06-24-66-88-34) pour tout renseignement sur la maison et sur les démarches à suivre. Donnez vie à vos projets immobiliers avec Maisons Balency Saint-Maur-des-Fossés.










