

- Prix
- 571 000 €
Maison neuve • Ormesson-sur-Marne (94)
- Nom et prix
- Terrain à bâtir () • 571 000 €
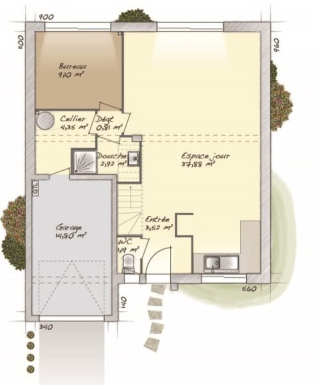
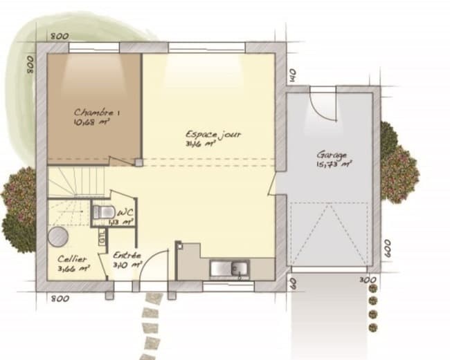
VENTE : maison T6 (128 m²) à Ormesson-sur-Marne MAISON 6 PIÈCES NEUVE - PROCHE DE PARIS À vendre : à proximité de la station La Varenne-Chennevières du RER A (15 min de Paris), à Ormesson-sur-Marne (94490), nous sommes ravis de vous présenter cette maison de 6 pièces de 128 m². Elle dispose de quatre chambres, d'une cuisine et de deux salles de bains. Le terrain de la propriété est de 343 m². C'est une maison de 2 niveaux. Elle est neuve. Des écoles maternelles et élémentaires sont implantées à moins de 10 minutes à pied, tout comme deux structures d'accueil pour la petite enfance. Niveau transports en commun, il y a le RER A, E, D et C ainsi que 18 gares à moins de 10 minutes en voiture. On trouve une bibliothèque, une boulangerie, des commerces, un supermarché, quatre épiceries et un bureau de poste à proximité de la maison. Enfin, le marché Rue du Centre anime le quartier tous les samedis matin. Son prix de vente est de 571 000 €. Prenez contact avec Aurelien MONTANIER (tél : 06-24-66-88-34) pour plus de renseignements sur cette maison, sur les démarches à suivre ou sur les modalités de vente. Faites de vos projets immobiliers une réalité avec Maisons Balency Saint-Maur-des-Fossés.










