

- Prix
- 539 000 €
Maison neuve • Sucy-en-Brie (94)
- Nom et prix
- Terrain à bâtir () • 539 000 €
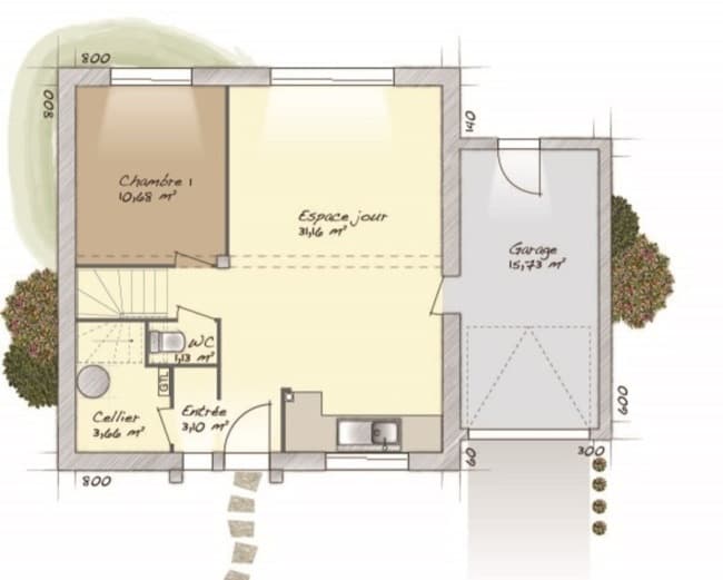
Sucy-en-Brie : maison T4 (82 m²) à vendre MAISON 4 PIÈCES NEUVE En vente : à proximité du RER A (station Sucy-Bonneuil, 20 min de Paris), découvrez cette maison de 4 pièces de 82 m² et de 300 m² de terrain à Sucy-en-Brie (94370). Elle compte trois chambres, une cuisine et une salle de bains. Cette maison comporte 2 niveaux. Elle est neuve. Il y a des écoles du primaire et du secondaire à moins de 10 minutes à pied, tout comme trois structures d'accueil pour la petite enfance. Niveau transports en commun, on trouve les lignes de RER A, D, E et C ainsi que 22 gares à moins de 10 minutes en voiture. Il y a une bibliothèque, un bassin de natation, des commerces, des boulangeries, trois supermarchés, un bureau de poste et une épicerie à quelques minutes. 2 marchés animent les environs. Elle est proposée à l'achat pour 539 000 €. Contactez Aurelien MONTANIER (tél : 06-24-66-88-34) pour plus d'informations sur cette maison. Maisons Balency Saint-Maur-des-Fossés vous accompagne à toutes les étapes de l'achat et dans toutes vos démarches.












