

- Prix
- 258 582 €
Maison neuve • Gaillon (27)
- Nom et prix
- Terrain à bâtir () • 258 582 €
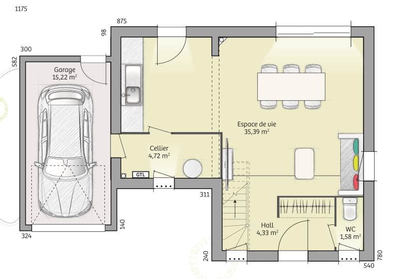
Maison F5 (90 m²) en vente à Gaillon PROCHE D'ÉVREUX - MAISON 5 PIÈCES NEUVE En vente : à quelques kilomètres d'Évreux, nous vous présentons cette maison de 5 pièces de 90 m² à Gaillon (27600). Cette maison comporte 2 niveaux. Son intérieur propose trois chambres, une cuisine et une salle de bains. La maison est neuve. Le terrain de la propriété s'étend sur 4 042 m². Cinq établissements scolaires sont implantés à moins de 10 minutes à pied, tout comme deux crèches. Niveau transports en commun, il y a la gare Gaillon-Aubevoye à moins de 10 minutes en voiture. L'autoroute A13 est accessible à 4 km. On trouve un tennis, un supermarché, des commerces, des boulangeries, des boucheries-charcuteries et un bureau de poste dans les environs. Enfin, le marché Rue de Gaulle anime le quartier chaque mardi matin. Elle est proposée à l'achat pour 258 582 €. Prenez contact avec Karen DELELIS (tél : 06-26-38-49-42) pour toute question sur cette maison, sur les modalités de vente et sur les démarches à suivre. Maisons Balency Gravigny est là pour vous accompagner dans tous vos projets immobiliers.