

- Prix
- 310 000 €
Maison neuve • Verneuil-en-Halatte (60)
- Nom et prix
- Terrain à bâtir () • 310 000 €
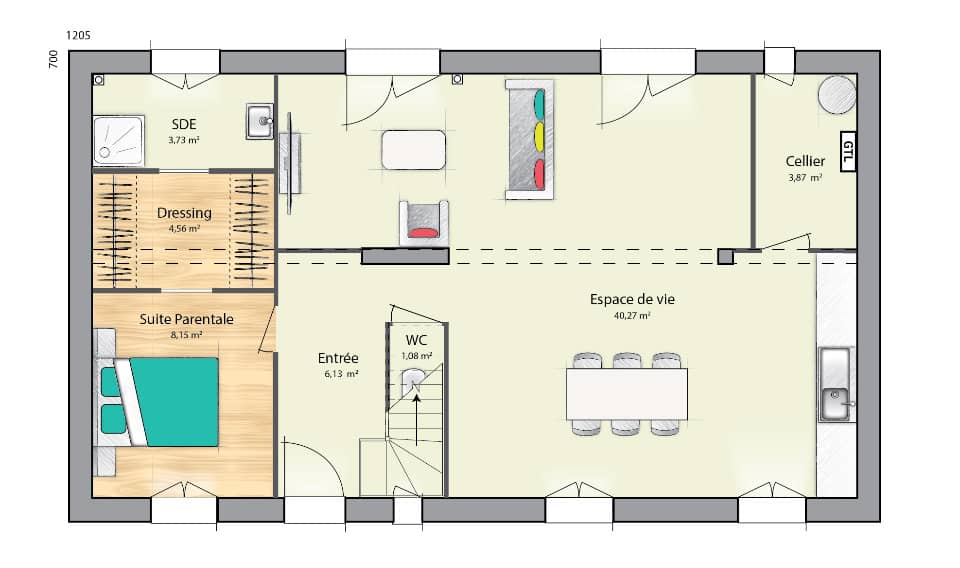
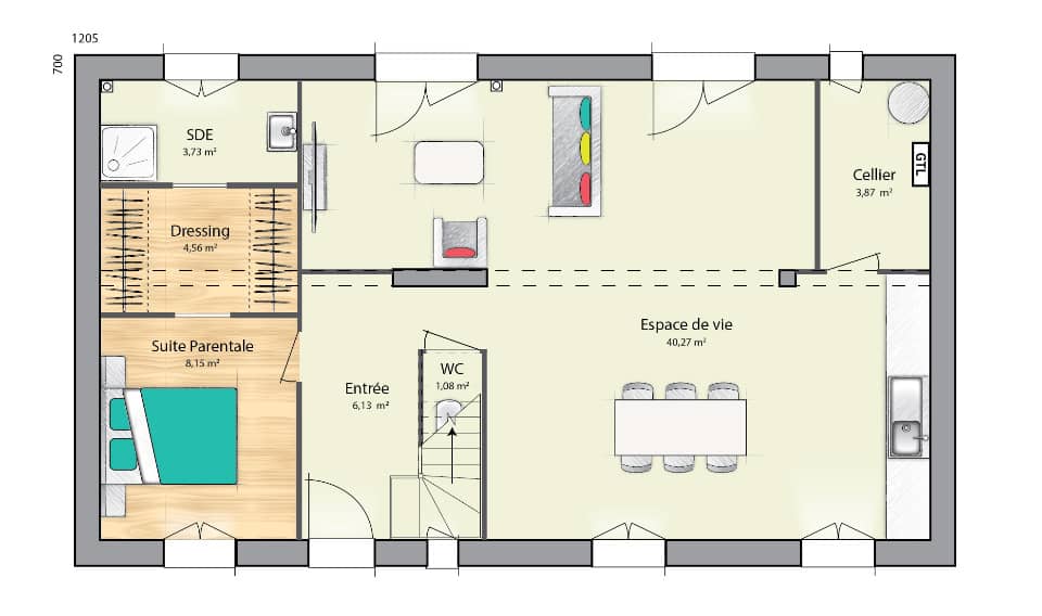
Donnez vie à votre projet de construction avec Maison France Confort, n°1 en France ! Sur un terrain viabilisé de 522 m², avec une large façade constructible de 21.00 m, nous vous proposons un projet complet : Terrain, maison traditionnelle sur mesure et frais annexes inclus (viabilisation, raccordements, plans) VERNEUIL EN HALATTE (60), charmante commune de l'Oise, offre un cadre paisible et verdoyant, idéal pour bâtir votre maison. Proche des écoles, des commerces et des grands axes, cet emplacement allie sérénité et praticité. Vous serez également séduit par la richesse naturelle et patrimoniale de la région, coeur d'un environnement préservé. Exemple de projet : Maison de plain-pied en L de 5 pièces, 85 m² de surface habitable, comprenant 3 chambres, 1 salle de bain, 1 cellier et un garage intégré. Une opportunité unique à ne pas manquer ! Contacter Xavier dès aujourd'hui, de l'agence Maisons France Confort de Compiègne, au 06 16 27 53 27, pour en savoir plus et construire votre futur chez-vous.










