

- Prix
- 360 900 €
Maison neuve • Bessancourt (95)
- Nom et prix
- Terrain à bâtir Bessancourt (95550) • 360 900 €
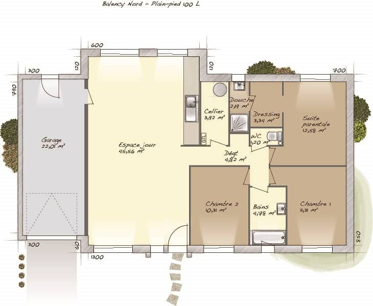
Vente Maison Neuve à Construire - Bessancourt (95) Située dans un environnement calme et agréable, à seulement quelques minutes de la gare, des écoles et des commerces, cette maison neuve à construire est l'opportunité idéale pour concrétiser votre projet immobilier à Bessancourt. Sur un terrain de 300 m² avec une façade de 9 mètres, cette maison contemporaine de 137 m² vous offrira un cadre de vie agréable et fonctionnel, tout en répondant à vos besoins et attentes. Caractéristiques du bien : Surface habitable : 137 m² 6 pièces spacieuses 4 chambres, dont une suite parentale 2 salles de bain modernes Pièces lumineuses et bien agencées Terrain de 300 m² avec une belle façade de 9 m La maison peut être entièrement personnalisée selon vos préférences et besoins. Que ce soit les plans, les matériaux ou encore les prestations, tout est adaptable à votre budget et à votre mode de vie. Pourquoi choisir Bessancourt ? Accès rapide à la gare pour rejoindre Paris en toute simplicité Proximité des écoles, idéal pour les familles Commerces de proximité pour faciliter votre quotidien Environnement paisible tout en étant bien desservi Faites confiance à Maisons Evolution, votre partenaire de construction pour réaliser la maison de vos rêves ! Pour plus d'informations, contactez nous dès maintenant pour discuter de votre projet ! Caroline BETHERY - Conseillère Maisons Evolution Cormeilles en Parisis : O6 81 87 74 31











