

- Prix
- 347 888 €
Maison neuve • Ognes (60)
- Nom et prix
- Terrain à bâtir Ognes (60440) • 347 888 €
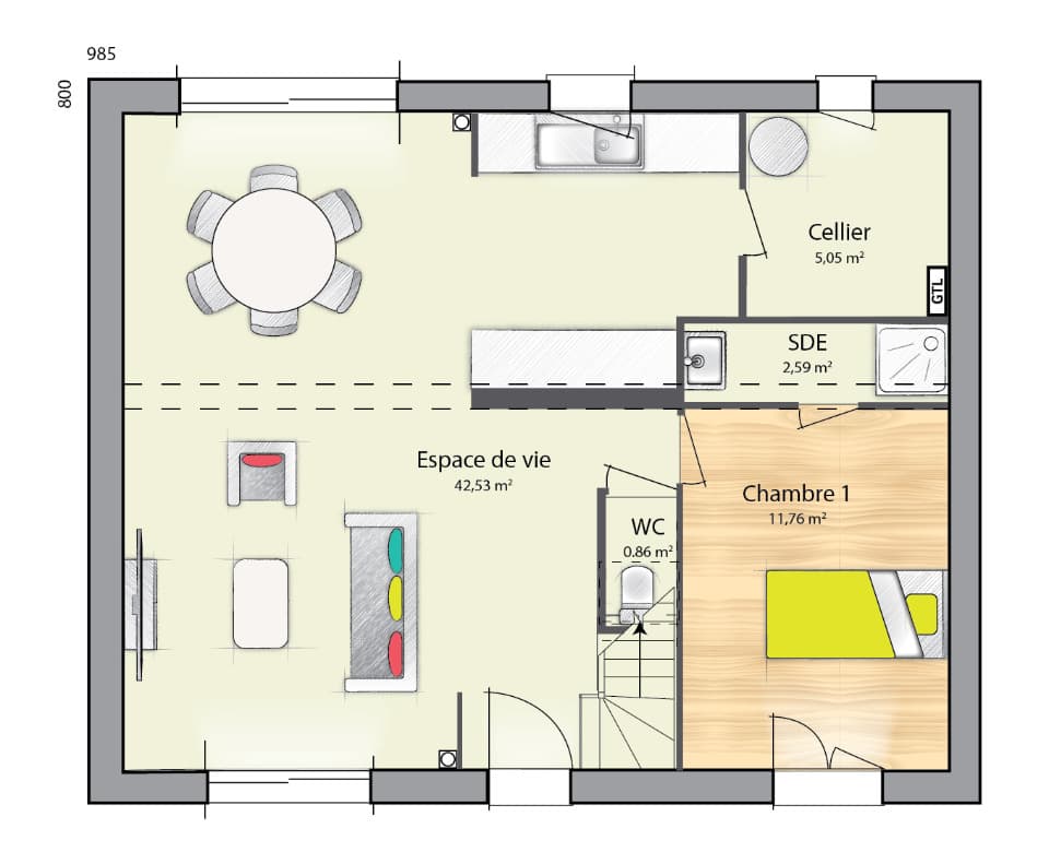
Maison de type R+1 , située à 9 minutes du Plessis Belleville , sur un terrain de 482m² viabilisé . Proximité de l'école et du périscolaire , environnement paisible et verdoyant , 20 minutes de Roissy. Cette maison dispose de 5 chambres avec rangements intégrés , séjour carrelé ,3 salles d'eau équipées ,cellier , packs alarme et domotique . Tous nos plans sont 100% personnalisables et modifiables selon vos gouts et habitudes de vie . Profitez également de notre expérience de plus de 13 ans sur le secteur , et bénéficiez d'un accompagnement intégral pour votre projet de vie : Financement , étude technique du terrain , gestion administrative . Les frais annexes ( raccordements , viabilisation , puisards, enlèvements des terres excédentaires , chemin d'accès )inclus dans le prix de cette annonce . Contactez moi pour une étude gratuite . Rendez vous en agence ou à votre domicile . VERON ANTHONY /07/77/85/58/88/











