logo de nos-terrains.com

1254 maisons neuves à vendre à Gressey (78)

Résultats de recherche

Maison neuve -  à Orgerus (78), prix 404 000 €
404 000 €
140 m²
2886 €/m²

Maison neuveOrgerus (78)

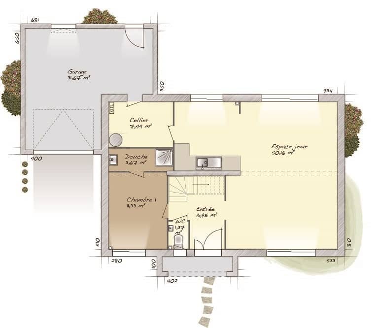
Maison Etage Contemporaine Prenez le temps de découvrir cette attrayante Maison Etage contemporaine ! Nous nous adaptons à vos souhaits et espérons que ce modèle vous servira d'inspiration. Toute nos maisons sont uniques et reflètent les vies de nos clients. Sur cette jolie parcelle située à Orgerus, réalisez le projet de construction de maison contemporaine de vos rêves ! Cette Maison Etage contemporaine répond aux normes énergétiques en vigueur (RE 2020) et dispose d'un agencement agréable et personnalisable : - Salon/séjour de 40m2 avec baies coulissantes - Cuisine ouverte + cellier - 4 chambres dont 1 suite parentale avec douche à l'italienne au rez-de-chaussée - Bureau - Salle de bain - Garage Maison seule vendue à partir de 269 000 €. Maison certifiée RE2020 DPE : A / GSE : B. Nos maisons sont construites dans toute la Normandie. Nous avons acquis un savoir faire et une solide réputation depuis 1979. Toutes nos maisons sont sous contrat CCMI.  Vous pouvez nous rencontrer au sein de nos différentes agences dans toute la Normandie. Notre savoir-faire familial nous a permis de réaliser le rêve de plus de 4000 foyers en Normandie ! Nous sommes à votre écoute et nous nous adaptons constamment à tout type de situation, de terrain, de budget, d'envies. Ainsi, nous partons de vos plans pour dessiner avec vous la maison de vos rêves. Venez nous rencontrer : Les Demeures De Province – 55 rue de Conches 27 000 Evreux Étude gratuite auprès de votre conseiller : au 06 09 38 43 46 __________________________________________________________ Photos non contractuelles. Projet à réaliser. Prix maison hors options. Ne comprend pas les aménagements extérieurs et intérieurs (éléments de décoration, mobilier, cuisine équipée). Garanties et assurances obligatoires incluses (voir détails en agence). Hors raccordements, hors branchements. Hors frais de notaire du terrain. Terrain sélectionné et vu pour vous sous réserve de disponibilité et au prix indiqué par notre partenaire fon

Proposé par LES DEMEURES DE PROVINCE


Illustration Maisons neuves en vente à proximité de Gressey (78)

Maisons neuves en vente à proximité de Gressey (78)

Gressey, située dans le département des Yvelines (78), est une charmante commune française nichée au cœur de la vallée de la Seine. Proche de Mantes-la-Jolie, elle offre un cadre de vie paisible et verdoyant. La ville est particulièrement connue pour son patrimoine historique, notamment son église Saint-Pierre-Saint-Paul. Pour ceux qui cherchent à s'installer dans un environnement calme et authentique, Gressey propose des opportunités d'achat de maisons neuves, idéales pour une vie équilibrée entre nature et commodités.

Autres villes actives à Yvelines (78)


Conseils pour l'achat d'un bien immobilier

Découvrez notre sélection de maisons neuves, synonymes de confort moderne et de sérénité. Trouvez votre futur chez-vous.

L'avantage d'une maison neuve

Choisir une maison neuve, c'est bénéficier des dernières normes énergétiques (RE2020) pour des économies durables, de frais de notaire réduits, et des garanties constructeur (parfait achèvement, décennale) pour une tranquillité d'esprit.

Nos types d'annonces

Explorez nos annonces : maisons clés en main prêtes à décorer, ou programmes terrain + maison pour personnaliser certains aspects.