

- Prix
- 605 900 €
Maison neuve • Igny (91)
- Nom et prix
- Terrain à bâtir Igny (91430) • 605 900 €
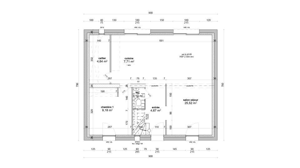
Maisons BERVAL, votre constructeur de confiance, vous propose une sélection de maisons d'exception au coeur de la commune d'Antony. Chaque modèle allie modernité, confort et élégance, conçu pour répondre à toutes vos attentes. Modèle Dauphine 110 Maison individuelle Dauphine 110 La Dauphine 110 est une maison de 110 m² au design épuré et à l'agencement optimisé, idéale pour une famille recherchant une maison pratique et accueillante. Elle offre un séjour lumineux, une cuisine moderne, une chambre principale avec salle de bain privative, deux chambres supplémentaires et une seconde salle de bain. Le jardin privatif est parfait pour les moments de détente en extérieur, tandis que le garage assure un stationnement sécurisé. Située dans un quartier paisible, cette maison allie charme et fonctionnalité. Pourquoi choisir Maisons BERVAL ? • Expertise locale : Implantés à Antony, nous connaissons parfaitement les spécificités de la région. • Qualité supérieure : Nos maisons sont construites avec des matériaux de haute qualité et un savoir-faire reconnu. • Personnalisation : Chaque modèle peut être adapté à vos besoins et à vos goûts. N'attendez plus pour réaliser votre rêve de maison individuelle ! Pour de plus amples informations veuillez contacter Sébastien LAFAYE - 06/26/89/32/04 Terrain vu avec notre partenaire foncier, sous réserves de disponibilité Prix hors frais de notaire et hors frais annexes










