

- Prix
- 392 774 €
Maison neuve • Villiers-sur-Marne (94)
- Nom et prix
- Terrain à bâtir () • 392 774 €
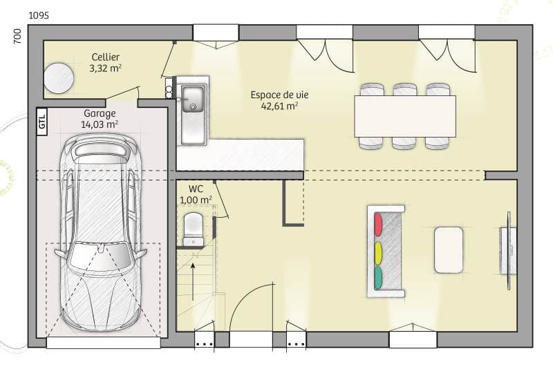
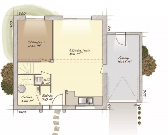
VENTE d'une maison F5 (80 m²) à Villiers-sur-Marne MAISON 5 PIÈCES NEUVE À vendre : à Villiers-sur-Marne (94350), nous sommes ravis de vous proposer cette maison de 5 pièces de 80 m². Son intérieur est composé de trois chambres, d'une cuisine et d'une salle de bains. Le terrain du bien s'étend sur 300 m². C'est une maison de 2 niveaux. Elle est neuve. Plusieurs écoles (maternelle, élémentaire, primaire et collège) se trouvent à moins de 10 minutes à pied, tout comme quatre structures d'accueil pour la petite enfance. Niveau transports en commun, il y a la station de RER Villiers-Sur-Marne-Plessis-Trévise (ligne E) ainsi que la gare Villiers-sur-Marne-Le Plessis-Trévise à proximité. On trouve une bibliothèque, deux tennis, un bassin de natation, des commerces, des boulangeries, trois supermarchés, des boucheries-charcuteries et deux bureaux de poste dans les environs. Le marché Place de l'église anime le quartier. Elle est à vendre pour la somme de 392 774 €. Prenez contact avec Sébastien DARTEVELLE (06-24-63-58-60) pour tout renseignement sur la maison. Faites de vos projets immobiliers une réalité avec Maisons Balency Dammartin-en-Goële.






