

- Prix
- 381 000 €
Maison neuve • Villeparisis (77)
- Nom et prix
- Terrain à bâtir Villeparisis (77270) • 381 000 €
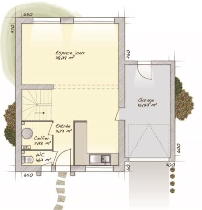
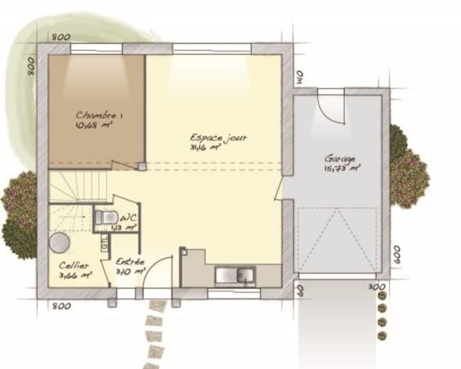
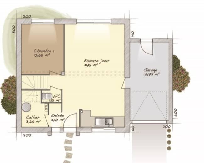
Maison T5 (90 m²) en vente à Villeparisis MAISON 5 PIÈCES NEUVE À proximité du RER B (station Villeparisis-Mitry-le-Neuf, 30 min de Paris), en vente à Villeparisis (77270), nous vous proposons cette maison de 5 pièces de 90 m² et de 280 m² de terrain. Cette maison compte 2 niveaux. Son intérieur compte trois chambres, une cuisine et une salle de bains. La maison est neuve. Il y a plusieurs écoles (maternelle, élémentaire, primaire et collège) à moins de 10 minutes à pied. Niveau transports, on trouve les lignes B et E du RER ainsi que 26 gares à moins de 10 minutes en voiture. Il y a un bassin de natation, une bibliothèque, un tennis, des commerces, quatre boulangeries, une boucherie-charcuterie, trois épiceries et un bureau de poste à proximité du bien. Le marché Rue de Gaulle anime les environs. Elle est proposée à l'achat pour 381 000 €. N'hésitez pas à prendre contact avec Sébastien DARTEVELLE (06-24-63-58-60) pour tout renseignement sur la maison ou sur les modalités de vente. Maisons Balency Dammartin-en-Goële vous accompagne dans toutes vos démarches et à toutes les étapes de votre projet.











