

- Prix
- 217 000 €
Maison neuve • Lieuran-lès-Béziers (34)
- Nom et prix
- Terrain à bâtir () • 217 000 €
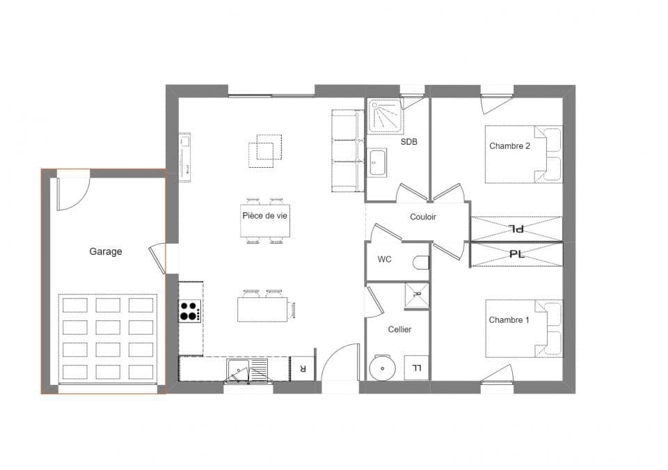
PROJET DE CONSTRUCTION - Lieuran-lès-Béziers : maison F3 (62 m²) PROCHE DE BÉZIERS - MAISON 3 PIÈCES À vendre à 20 km de la mer Méditerranée et à 7 km de Béziers, ayez le coup de coeur pour cette maison de 3 pièces de plain-pied de 62 m² à Lieuran-lès-Béziers (34290). Conçue de plain-pied, elle comporte deux chambres, une cuisine, un cellier, une salle de bains et un garage. Le terrain du bien s'étend sur 444 m². (Carrelage inclus dans toutes les pièces / Raccordements inclus). On trouve une école primaire dans le quartier. Côté transports, il y a deux gares (Magalas et Béziers) à moins de 10 minutes en voiture. Les autoroutes A75 et A9 sont accessibles à moins de 10 km. On trouve un tennis, une boulangerie, trois commerces et un supermarché à proximité. Elle est à vendre pour la somme de 217 000 €. Pour plus d'information contacter (Anthony BALLESTER : 06.27.21.51.55) Maisons France Confort Béziers pour échanger sur votre projet et réaliser une étude gratuite. (Plan personnalisable). Tous nos ouvrages sont réalisés sur-mesure en fonction de vos attentes et de nos échanges avec vous ainsi que dans le respect de la règlementation RE 2020. Ce projet comporte les garanties suivantes: Contrat de construction CCMI. Dommage/Ouvrage. RC Garantie décennale. Parfaite achèvement. Etude de sol G2. Prix et délais convenu. Garantie financière Pour votre tranquillité nous nous occupons de toutes les formalités administratives.