

- Prix
- 259 000 €
Maison neuve • Époye (51)
- Nom et prix
- Terrain à bâtir () • 259 000 €
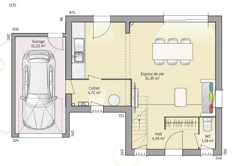
À Epoye, maison neuve (normes RE 2020) de 90m2 avec patio. Maison de construction traditionnelle (matériaux de qualité, ossature en brique) de 3 chambres (possibilité d'une quatrième). Le modèle présenté est le modèle Open Nord ETG L GA accès Sud 90 so chic d'une surface habitable de 90m2 et compte une pièce de vie ouverte sur la cuisine, une salle de bain, 3 chambres, avec espace pour les placards, deux wc, un cellier et un garage. Il est possible de personnaliser ces plans afin qu'ils répondent parfaitement à vos attentes. Terrain constructible de 650m2 entièrement viabilisé à Epoye parfaitement plat et idéalement situé au calme et proche de toutes les commodités. Epoye est une commune recherchée pour son axe direct, et sa proximité avec Reims, Cernay Lès Reims, Witry Lès Reims, Berru, Nogent L'Abbesse, Beine Nauroy, Prunay, Val de Vesle, Prosnes, Pontfaverger, Saint Masmes, Caurel, Lavannes, Selles, Heutrégiville, Vaudétré et Warmeriville. Pour plus de renseignements vous pouvez me contacter , Nicolas GUILLAUME de l'agence Maisons France Confort de Cormontreuil au 07.77.79.23.59










