

- Prix
- 332 274 €
Maison neuve • Villeneuve-sous-Dammartin (77)
- Nom et prix
- Terrain à bâtir () • 332 274 €
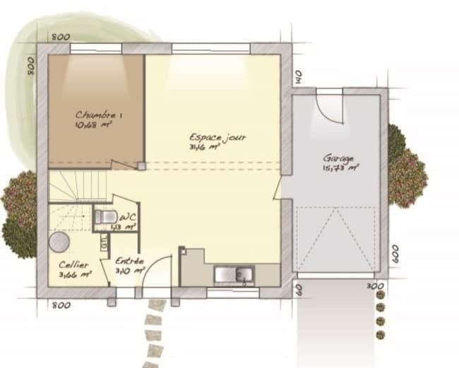
VENTE d'une maison F6 (98 m²) à Villeneuve-sous-Dammartin PROCHE DE PARIS - MAISON 6 PIÈCES NEUVE En vente : à proximité du Transilien K (gare de Thieux-Nantouillet, 30 min de Paris), à Villeneuve-sous-Dammartin (77230), notre agence Maisons Balency Dammartin-en-Goële est heureuse de vous présenter cette maison de 6 pièces de 98 m². C'est une maison de 2 niveaux. Elle est composée de quatre chambres, d'une cuisine et d'une salle de bains. La maison est neuve. Le terrain du bien est de 300 m². On trouve une école primaire dans le quartier. Côté transports, il y a la ligne de RER B (Aéroport Charles De Gaulle 2-Tgv) ainsi que huit gares à moins de 10 minutes en voiture. On trouve une boulangerie et un commerce dans les environs. Elle est à vendre pour la somme de 332 274 €. Contactez Sébastien DARTEVELLE (tél : 06-24-63-58-60) pour toute information sur la maison. Maisons Balency Dammartin-en-Goële est là pour vous accompagner à toutes les étapes de l'achat.












