

- Prix
- 435 900 €
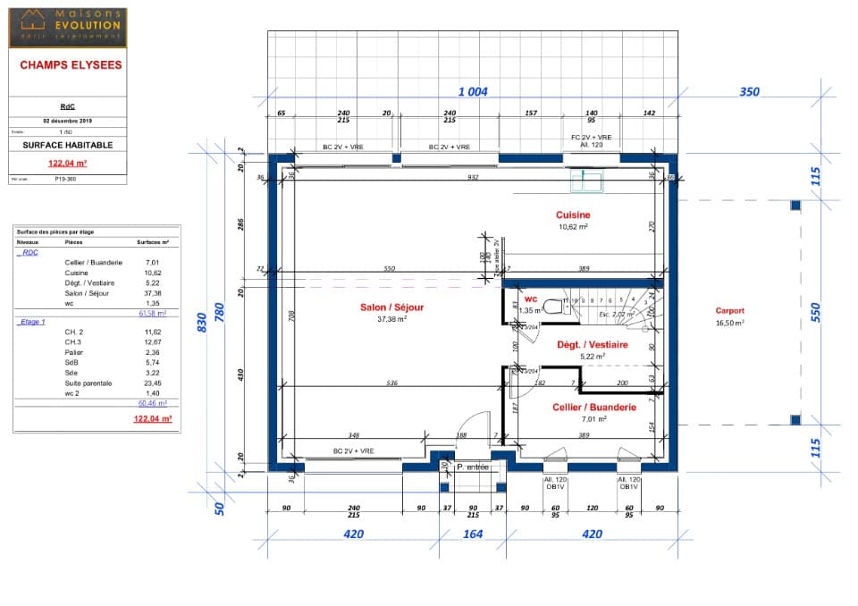
Maison neuve • Favières (77)
- Nom et prix
- Terrain à bâtir Favières (77220) • 435 900 €
Contactez Guillaume Bordes de l'agence Maisons Evolution de Mareuil-lès-Meaux au 06.22.93.94.71 pour avoir plus d'informations sur ce projet. Découvrez cette belle et grande maison moderne à étage de 162 m² habitables idéalement située sur la commune de Favières. Elle est composée de 5 chambres dont 2 suites parentales avec salle d'eau, d'une troisième salle de bains, de deux WC séparés, d'un cellier, et d'un grand salon-séjour lumineux avec cuisine ouverte. Vous y trouverez également une véritable entrée avec placard. Les plans sont entièrement modifiables selon vos souhaits, en agence ou visioconférence. Nous vous proposons un véritable accompagnement de qualité tout au long de votre projet. Dessinons ensemble votre future maison ! Tel : 06.22.93.94.71











