

- Prix
- 178 953 €
Maison neuve • VILLEPREUX (78)
- Nom et prix
- Projet de construction d'une maison 117 m² avec terrain à VILLEPREUX (78) • 178 953 €
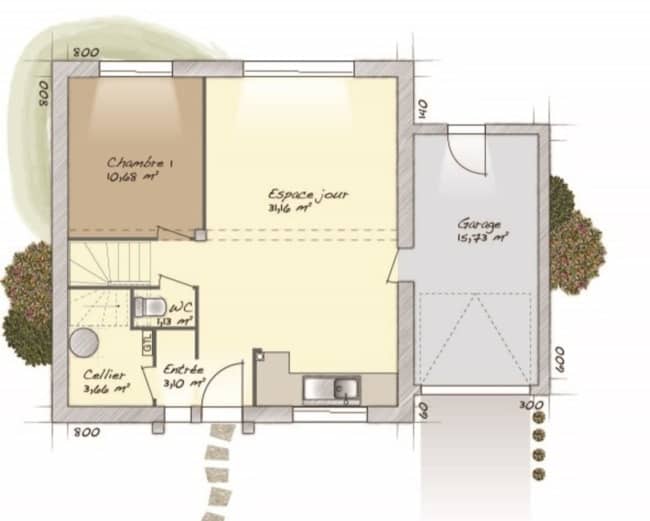
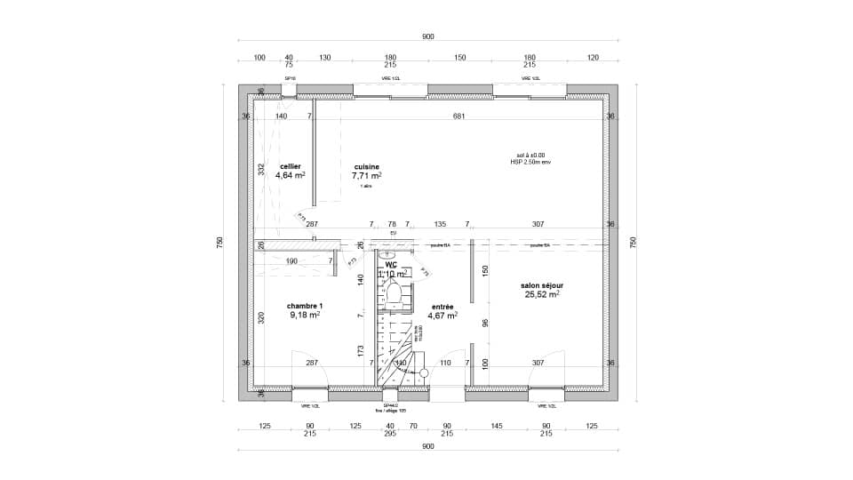
A VILLEPREUX sur un terrain de 355 m², MAISONS SESAME vous propose de réaliser cette maison neuve d'une surface de 117 m² habitables avec 4 chambres. Le modèle EMERAUDE 120 est une maison familiale de 120 m² de style classique, qui privilégie à la fois le confort et l’optimisation des espaces. L'avancée de la maison, qui vient souligner son architecture élégante, lui confère un caractère distinctif, renforçant ainsi son style cossu. Au rez-de-chaussée, vous trouverez une cuisine ouverte, qui se prolonge sur un grand séjour de 30 m², offrant une belle vue sur le jardin. Un cellier pratique est également présent, ainsi qu'une chambre indépendante, pouvant servir de bureau ou d'espace polyvalent, et un WC séparé. À l’étage, les trois chambres se partagent une salle de bain, et un grand dressing. Le palier spacieux peut être aménagé en bureau ou en boudoir, offrant un espace supplémentaire pour s’adapter aux besoins de la famille. Ce modèle est conçu pour offrir à la fois confort et flexibilité. MAISONS SÉSAME vous propose les prestations suivantes : - Plans des maisons modulables et adaptables selon vos besoins et les spécificités de votre terrain - Large choix de systèmes de chauffage performants et économes en énergie - Sélection de matériaux de qualité garantissant confort et durabilité - Accompagnement sur-mesure pour la recherche et l’acquisition de votre terrain - Construction conforme à la réglementation en vigueur et à la norme RE2020 - Maisons certifiées NF HABITAT, gage de qualité, de performance et de confort Informations du terrain : Dans un jolie quartier école a pieds Zone pavillonnaire PTZ Demandez une étude gratuite et personnalisée de votre projet de construction ! Étude gratuite de votre projet de construction ! De nombreux terrains disponibles dans votre secteur. Informations légales : Maisons Sésame, constructeur de maisons individuelles, propose une sélection de terrains en collaboration avec ses partenaires fonciers, sous réserve de disponibilité. Il n’agit pas en tant que mandataire pour la vente de ces terrains. Nos maisons, certifiées NF Habitat et conformes à la réglementation thermique en vigueur, vous garantissent un habitat durable et économe en énergie. Découvrez un large choix de modèles adaptés aux besoins de toute la famille. Informations tarifaires : Les prix indiqués sont donnés à titre indicatif et n’incluent pas les frais annexes (frais de notaire, raccordements, etc.). Les visuels et prix présentés sont non contractuels. Pour plus de détails, consultez nos conditions en agence. N° ORIAS IOBSP 13007108 – RCS Versailles 388 867 426. Les informations sur les risques auxquels ce bien est exposé sont disponibles sur le site Géorisques : www.georisques.gouv.fr Cette annonce a été créée et diffusée avec le logiciel VITAHOME. Contactez Tahar BELFEKI au 06 27 49 18 91 ou au 01 82 20 01 50 (Maisons Sésame - Agence de Coignières).












