

- Prix
- 389 800 €
Maison neuve • Pierrelaye (95)
- Nom et prix
- Terrain à bâtir Pierrelaye (95480) • 389 800 €
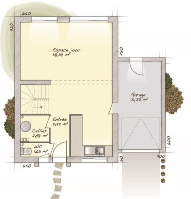
Pierrelaye : maison de 5 pièces (90 m²) en vente IDÉALEMENT SITUÉE - MAISON 5 PIÈCES NEUVE Proche de la gare (Paris à 30 min avec le Transilien H), Maisons Balency Pierrelaye vous propose cette maison de 5 pièces de 90 m² et de 252 m² de terrain avec vue sur jardin idéalement située dans Pierrelaye (95480). Cette maison compte 2 niveaux. Son intérieur comporte trois chambres, une cuisine et une salle de bains. Cette maison est neuve. La maison se situe dans un quartier convoité. Plusieurs établissements scolaires (maternelle, élémentaire, primaire et collège) sont implantés à moins de 10 minutes à pied, tout comme une structure d'accueil pour la petite enfance. Niveau transports, on trouve la station de RER Pierrelaye (ligne C) ainsi que la gare Pierrelaye juste à côté. Il y a une bibliothèque, un bassin de natation, des boulangeries, des commerces, quatre épiceries, une boucherie-charcuterie et un bureau de poste à proximité du bien. Elle est à vendre pour la somme de 389 800 €. N'hésitez pas à prendre contact avec notre agence (Christophe TALAMONI : 06-49-55-08-27) pour toute question sur la maison ou sur les modalités de vente. Maisons Balency Pierrelaye est là pour vous accompagner dans toutes vos démarches.












