

- Prix
- 255 582 €
Maison neuve • Pacy-sur-Eure (27)
- Nom et prix
- Terrain à bâtir () • 255 582 €
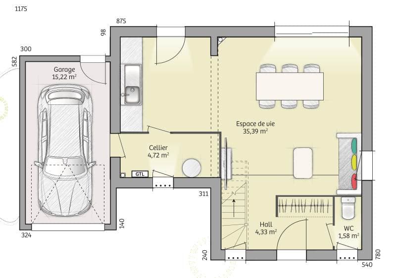
VENTE d'une maison de 5 pièces (90 m²) à Pacy-sur-Eure PROCHE D'ÉVREUX - MAISON 5 PIÈCES NEUVE En vente à quelques kilomètres d'Évreux, Maisons Balency Gravigny vous propose à Pacy-sur-Eure (27120), cette maison de 5 pièces de 90 m² et de 883 m² de terrain. Son intérieur inclut trois chambres, une cuisine et une salle de bains. Cette maison compte 2 niveaux. Elle est neuve. Plusieurs écoles (maternelle, élémentaire, primaire et collège) sont implantées à moins de 10 minutes à pied. On trouve un accès à la nationale N13 à 1 km. On trouve deux tennis, un bassin de natation, des commerces, trois supermarchés, quatre boulangeries, deux poissonneries et une épicerie dans les environs. Le marché Place de la Mairie a lieu tous les jeudis matin. Elle est à vendre pour la somme de 255 582 €. Prenez contact avec Karen DELELIS (tél : 06-26-38-49-42) pour toute information sur la maison, sur les démarches à suivre ou sur les modalités de vente. Maisons Balency Gravigny vous accompagne dans tous vos projets immobiliers et à toutes les étapes de votre projet.