

- Prix
- 183 126 €
Maison neuve • CREGY-LES-MEAUX (77)
- Nom et prix
- Projet de construction d'une maison 132 m² avec terrain à CREGY-LES-MEAUX (77) • 183 126 €
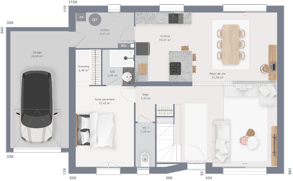
A CREGY-LES-MEAUX sur un terrain de 358 m², façade 11.58m, proche écoles, commerce et de la gare de Meaux ligne P, MAISONS SESAME vous propose de réaliser cette maison neuve d'une surface de 132 m² habitables avec 5 chambres. Le modèle PYROPE 130 2 pans est une maison de 132 m² au design élégant, mettant en valeur un fronton et un porche rentrant, ce qui lui confère un style à la fois raffiné et accueillant. Au rez-de-chaussée, vous trouverez un bureau idéal pour travailler à domicile, ainsi qu'une entrée spacieuse. Le grand séjour lumineux est ouvert sur une cuisine fonctionnelle, créant un espace de vie convivial. Ce niveau comprend également un WC séparé. À l’étage, les quatre chambres sont bien agencées, dont une suite parentale avec sa propre salle de douche. Ce modèle combine élégance, fonctionnalité et confort pour répondre aux besoins d’une famille moderne. MAISONS SÉSAME vous propose les prestations suivantes : - Plans des maisons modulables et adaptables selon vos besoins et les spécificités de votre terrain - Large choix de systèmes de chauffage performants et économes en énergie - Sélection de matériaux de qualité garantissant confort et durabilité - Accompagnement sur-mesure pour la recherche et l’acquisition de votre terrain - Construction conforme à la réglementation en vigueur et à la norme RE2020 - Maisons certifiées NF HABITAT, gage de qualité, de performance et de confort Demandez une étude gratuite et personnalisée de votre projet de construction ! Étude gratuite de votre projet de construction ! De nombreux terrains disponibles dans votre secteur. Informations légales : Maisons Sésame, constructeur de maisons individuelles, propose une sélection de terrains en collaboration avec ses partenaires fonciers, sous réserve de disponibilité. Il n’agit pas en tant que mandataire pour la vente de ces terrains. Nos maisons, certifiées NF Habitat et conformes à la réglementation thermique en vigueur, vous garantissent un habitat durable et économe en énergie. Découvrez un large choix de modèles adaptés aux besoins de toute la famille. Informations tarifaires : Les prix indiqués sont donnés à titre indicatif et n’incluent pas les frais annexes (frais de notaire, raccordements, etc.). Les visuels et prix présentés sont non contractuels. Pour plus de détails, consultez nos conditions en agence. N° ORIAS IOBSP 13007108 – RCS Versailles 388 827 426. Cette annonce a été créée et diffusée avec le logiciel VITAHOME. Contactez Andy DURDON au 06 24 17 71 87 ou au 01 48 19 23 33 (Maisons Sésame - Agence d'Aulnay sous bois).








