

- Prix
- 169 782 €
Maison neuve • VILLABE (91)
- Nom et prix
- Projet de construction d'une maison 108 m² avec terrain à VILLABE (91) • 169 782 €
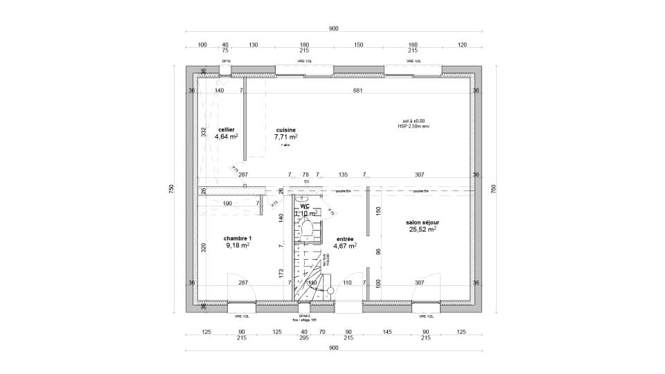
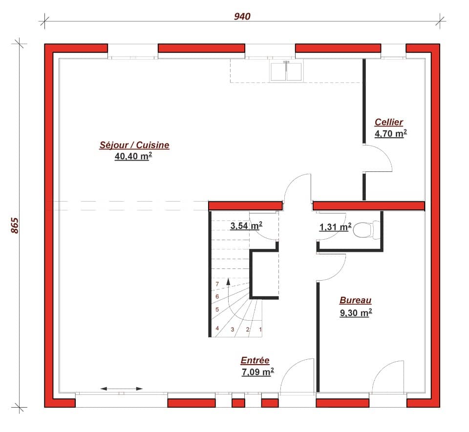
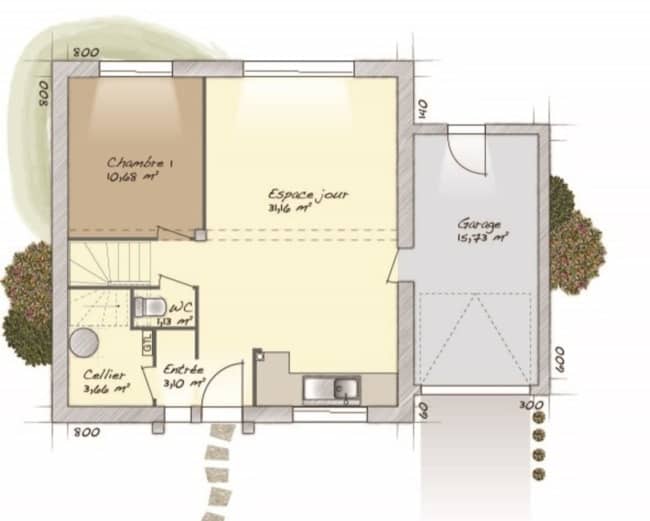
A VILLABE sur un terrain de 345 m², MAISONS SESAME vous propose de réaliser cette maison neuve d'une surface de 108 m² habitables avec 4 chambres. Le modèle JADE 110 est une maison à étage de 108 m², qui allie confort et design élégant. Avec un garage intégré, elle dispose d'une avancée sur l'avant, offrant ainsi un design soigné et fonctionnel. Au rez-de-chaussée, vous trouverez un spacieux séjour lumineux, donnant sur une cuisine fermée, idéale pour des moments conviviaux en toute tranquillité. Ce niveau comprend également une salle de bains et un WC séparé, offrant praticité et confort au quotidien. À l’étage, les quatre chambres sont spacieuses et bien agencées, parfaites pour une famille. Ce modèle offre un équilibre parfait entre espace de vie et fonctionnalité. MAISONS SÉSAME vous propose les prestations suivantes : - Plans des maisons modulables et adaptables selon vos besoins et les spécificités de votre terrain - Large choix de systèmes de chauffage performants et économes en énergie - Sélection de matériaux de qualité garantissant confort et durabilité - Accompagnement sur-mesure pour la recherche et l’acquisition de votre terrain - Construction conforme à la réglementation en vigueur et à la norme RE2020 - Maisons certifiées NF HABITAT, gage de qualité, de performance et de confort Informations du terrain : Proche RER D (Villabé ou Moulin Galant). Sur place : établissements scolaires, boulangeries, commerces, supermarché, boucheries Demandez une étude gratuite et personnalisée de votre projet de construction ! Étude gratuite de votre projet de construction ! De nombreux terrains disponibles dans votre secteur. Informations légales : Maisons Sésame, constructeur de maisons individuelles, propose une sélection de terrains en collaboration avec ses partenaires fonciers, sous réserve de disponibilité. Il n’agit pas en tant que mandataire pour la vente de ces terrains. Nos maisons, certifiées NF Habitat et conformes à la réglementation thermique en vigueur, vous garantissent un habitat durable et économe en énergie. Découvrez un large choix de modèles adaptés aux besoins de toute la famille. Informations tarifaires : Les prix indiqués sont donnés à titre indicatif et n’incluent pas les frais de notaire. Les visuels et prix présentés sont non contractuels. Pour plus de détails, consultez nos conditions en agence. N° ORIAS IOBSP 13007108 – RCS Versailles 388 867 426. Les informations sur les risques auxquels ce bien est exposé sont disponibles sur le site Géorisques : www.georisques.gouv.fr Cette annonce a été créée et diffusée avec le logiciel VITAHOME. Contactez Benoit ORTIN au 06 11 90 69 47 ou au 01 69 05 14 14 (Maisons Sésame - Agence de Juvisy-sur-Orge).













