

- Prix
- 228 576 €
Maison neuve • ORSAY (91)
- Nom et prix
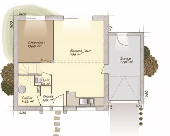
- Projet de construction d'une maison 124 m² avec terrain à ORSAY (91) • 228 576 €
Votre futur chez vous, c’est ici ! Découvrez ce superbe terrain à bâtir de 637 m² environ. Ce terrain offre une opportunité unique pour votre projet dans un environnement calme et sécurisé.. Le terrain est idéalement situé à proximité des écoles, des commerces et des transports en commun, offrant ainsi un cadre de vie pratique et agréable pour toute la famille. Ne manquez pas cette occasion unique de devenir propriétaire d’un terrain qui n’attend plus que votre projet de construction. Prenez rendez vous avec nos conseillers afin de concrétiser ce projet. Mme Fernandes 06 73 29 78 96 MAISONS SÉSAME vous propose les prestations suivantes : - Plans des maisons modulables et adaptables selon vos besoins et les spécificités de votre terrain - Large choix de systèmes de chauffage performants et économes en énergie - Sélection de matériaux de qualité garantissant confort et durabilité - Accompagnement sur-mesure pour la recherche et l’acquisition de votre terrain - Construction conforme à la réglementation en vigueur et à la norme RE2020 - Maisons certifiées NF HABITAT, gage de qualité, de performance et de confort Informations du terrain : Grande façade ce qui est rare sur le secteur, proches toutes commodités. Demandez une étude gratuite et personnalisée de votre projet de construction ! Étude gratuite de votre projet de construction ! De nombreux terrains disponibles dans votre secteur. Informations légales : Maisons Sésame, constructeur de maisons individuelles, propose une sélection de terrains en collaboration avec ses partenaires fonciers, sous réserve de disponibilité. Il n’agit pas en tant que mandataire pour la vente de ces terrains. Nos maisons, certifiées NF Habitat et conformes à la réglementation thermique en vigueur, vous garantissent un habitat durable et économe en énergie. Découvrez un large choix de modèles adaptés aux besoins de toute la famille. Informations tarifaires : Les prix indiqués sont donnés à titre indicatif et n’incluent pas les frais annexes (frais de notaire, raccordements, etc.). Les visuels et prix présentés sont non contractuels. Pour plus de détails, consultez nos conditions en agence. N° ORIAS IOBSP 13007108 – RCS Versailles 388 827 426. Cette annonce a été créée et diffusée avec le logiciel VITAHOME. Contactez Marine FERNANDES au 06 73 29 78 96 ou au 01 69 05 14 14 (Maisons Sésame - Agence de Juvisy-sur-Orge).





