

- Prix
- 490 920 €
Maison neuve • Servon (77)
- Nom et prix
- Terrain à bâtir Servon (77170) • 490 920 €
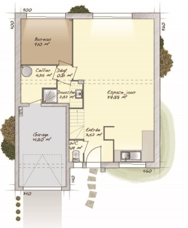
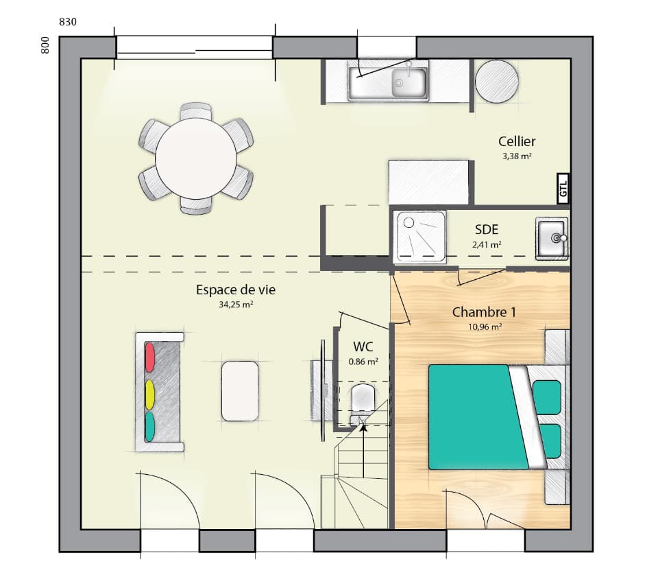
Servon : maison de 6 pièces (128 m²) à vendre MAISON 6 PIÈCES NEUVE - PROCHE DE PARIS En vente : à proximité du RER D (station Boussy-Saint-Antoine, 30 min de Paris), nous sommes ravis de vous présenter cette maison de 6 pièces de 128 m² à Servon (77170). Elle est composée de quatre chambres, d'une cuisine et de deux salles de bains. Le terrain de la propriété s'étend sur 600 m². C'est une maison de 2 niveaux. Elle est neuve. Il y a l'École Primaire la Butte Aux Bergers à moins de 10 minutes à pied. On trouve un tennis, une bibliothèque, des boulangeries, des commerces, un supermarché, un bureau de poste et une boucherie-charcuterie à quelques minutes à peine. Elle est proposée à l'achat pour 490 920 €. Contactez notre agence (FERNE Krizia : 07-83-36-28-46) pour tout renseignement sur la maison.











