

- Prix
- 215 000 €
Maison neuve • Aubigné-Racan (72)
- Nom et prix
- Terrain à bâtir Aubigné-Racan (72800) • 215 000 €
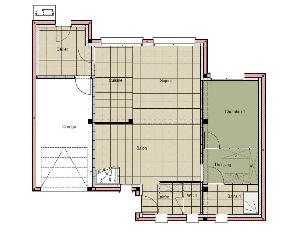
Aubigné-Racan : maison de 4 pièces (87 m²) à vendre IDÉALEMENT SITUÉE - MAISON 4 PIÈCES NEUVE Maine Construction Saint-Saturnin vous propose cette maison de 4 pièces de plain-pied de 87 m² et de 1 582 m² de terrain en vente, idéalement située dans Aubigné-Racan (72800). Elle inclut trois chambres, une cuisine et deux salles de bains. Cette maison est neuve. Ce bien est situé dans un quartier recherché. Des écoles maternelles et élémentaires sont implantées à moins de 10 minutes à pied,, parmi lesquelles l'École Primaire Privée Saint Joseph, tout comme une structure d'accueil pour la petite enfance. Niveau transports en commun, il y a la gare Aubigné-Racan dans les alentours. On trouve un accès à l'autoroute A28 à 7 km. On trouve deux tennis, deux boulangeries, trois commerces et une boucherie-charcuterie à quelques minutes à peine. Il est proposé à l'achat pour 215 000 €. N'hésitez pas à prendre contact avec François HOUDAYER (tél : 06-23-38-26-90) pour toute information sur la maison. Maine Construction Saint-Saturnin est là pour vous accompagner dans tous vos projets immobiliers.










