
Maison neuve • Paraza (11)
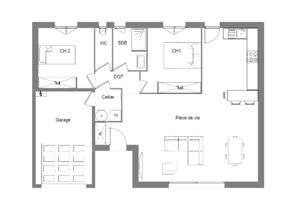
La Soleillade 116 m² mélange le raffinement méridional avec l'architecture traditionnelle locale. Ses décrochés de toitures, ses tuiles vieillies, son patio et sa forme donneront à votre maison un charme unique. Son hall d'entrée avec placards et WC s'ouvrira sur un lumineux Salon/Séjour de plus de 50 m2. Sa cuisine ouverte donnera sous une terrasse couverte, et un cellier communiquant avec un grand garage de 26 m². Le coté nuit s'articule autour d'une suite parentale de 18 m² avec un accès sur votre jardin, de 2 chambres, d'un bureau et d'une salle de bain familiale. La Soleillade est à construire dans le département du Tarn, l'Aude, l'Hérault, la Haute-Garonne ainsi que les Pyrénées Orientales par Oc résidences, votre constructeur sur mesure en Occitanie.
Proposé par OC RESIDENCES










