

- Prix
- 289 000 €
Maison neuve • Saint-Jean-d'Assé (72)
- Nom et prix
- Terrain à bâtir Saint-Jean-d'Assé (72380) • 289 000 €
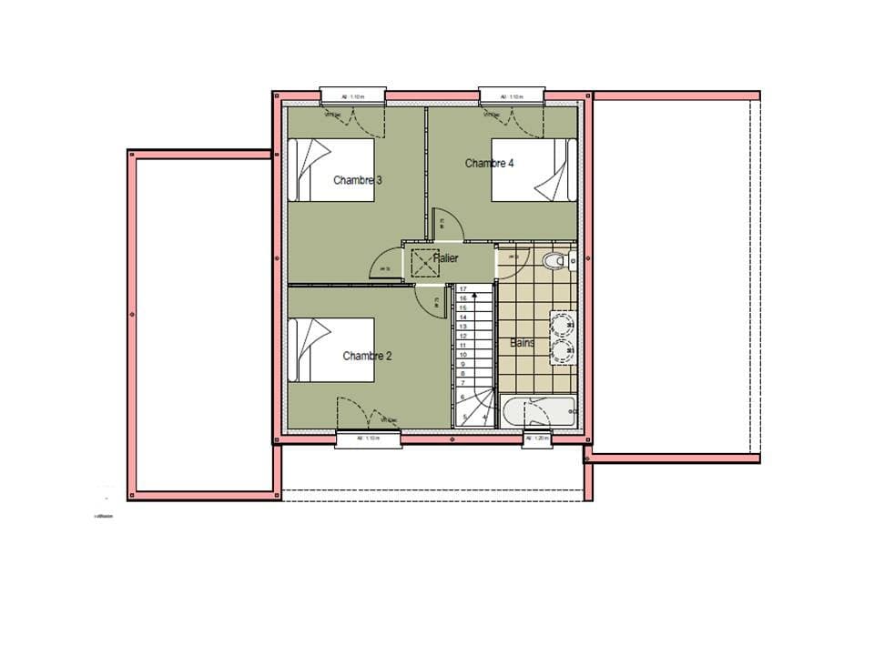
Maison F4 (115 m²) en vente à Saint-Jean-d'Assé EMPLACEMENT PRIVILÉGI- MAISON 4 PIÈCES NEUVE À vendre : à quelques kilomètres du Mans, nous sommes ravis de vous présenter cette maison de 4 pièces de 115 m² et de 741 m² de terrain bénéficiant d'un emplacement privilégié dans Saint-Jean-d'Assé (72380). Elle compte quatre chambres, une cuisine et deux salles de bains. Cette maison comporte 2 niveaux. Elle est neuve. Cette maison est située dans un secteur recherché. Il y a l'École Primaire Publique Pierre Gagneau à moins de 10 minutes à pied. Côté transports en commun, on trouve six gares à moins de 10 minutes en voiture. On trouve un accès à l'autoroute A28 à 6 km. Il y a une bibliothèque, une boulangerie et une supérette à quelques minutes. Elle est à vendre pour la somme de 289 000 €. Prenez contact avec notre agence (LIVET Luc : 07-77-76-37-30) pour toute question sur la maison. Maine Construction Saint-Saturnin vous accompagne dans toutes vos démarches et dans tous vos projets immobiliers.