

- Prix
- 195 386 €
Maison neuve • VAUREAL (95)
- Nom et prix
- Projet de construction d'une maison 139 m² avec terrain à VAUREAL (95) • 195 386 €
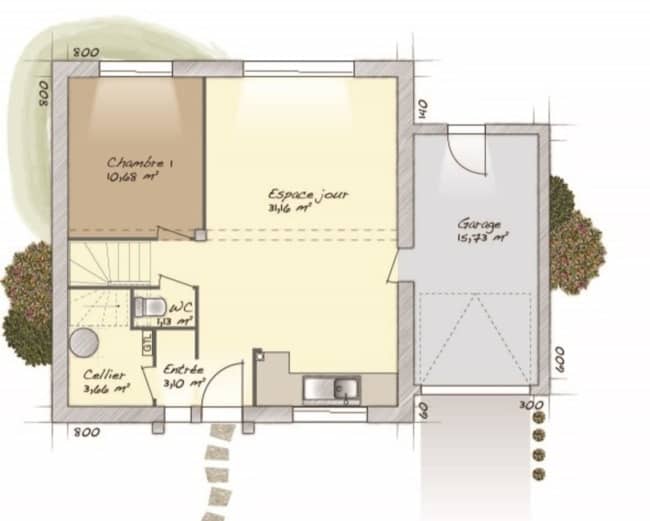
A VAUREAL sur un terrain de 430 m², MAISONS SESAME vous propose de réaliser cette maison neuve d'une surface de 139 m² habitables avec 4 chambres. Le modèle EMERAUDE 140 est une maison familiale d’une superficie de 140 m², elle dispose de 4 chambres et est conçue pour optimiser les espaces tout en offrant une ambiance chaleureuse et accueillante. L'avancée de la maison, qui vient souligner son architecture élégante, lui confère un caractère distinctif, renforçant ainsi son style cossu. Au rez-de-chaussée, la cuisine ouverte se prolonge dans un grand séjour de 39 m², avec une vue agréable sur le jardin. Un cellier et une chambre indépendante viennent compléter ce niveau, avec un WC pour plus de praticité. À l’étage, les trois autres chambres sont accompagnées d’une salle de bain spacieuse et d’un grand dressing. La mezzanine, bien agencée, offre un espace supplémentaire qui peut facilement être transformé en bureau ou en ""boudoir"". Ce modèle, avec ses volumes généreux et son avancée distinctive, répond parfaitement aux besoins d’une grande famille. MAISONS SÉSAME vous propose les prestations suivantes : - Plans des maisons modulables et adaptables selon vos besoins et les spécificités de votre terrain - Large choix de systèmes de chauffage performants et économes en énergie - Sélection de matériaux de qualité garantissant confort et durabilité - Accompagnement sur-mesure pour la recherche et l’acquisition de votre terrain - Construction conforme à la réglementation en vigueur et à la norme RE2020 - Maisons certifiées NF HABITAT, gage de qualité, de performance et de confort Informations du terrain : Calme et verdoyant, beau quartier, belle constructibilité Demandez une étude gratuite et personnalisée de votre projet de construction ! Étude gratuite de votre projet de construction ! De nombreux terrains disponibles dans votre secteur. Informations légales : Maisons Sésame, constructeur de maisons individuelles, propose une sélection de terrains en collaboration avec ses partenaires fonciers, sous réserve de disponibilité. Il n’agit pas en tant que mandataire pour la vente de ces terrains. Nos maisons, certifiées NF Habitat et conformes à la réglementation thermique en vigueur, vous garantissent un habitat durable et économe en énergie. Découvrez un large choix de modèles adaptés aux besoins de toute la famille. Informations tarifaires : Les prix indiqués sont donnés à titre indicatif et n’incluent pas les frais annexes (frais de notaire, raccordements, etc.). Les visuels et prix présentés sont non contractuels. Pour plus de détails, consultez nos conditions en agence. N° ORIAS IOBSP 13007108 – RCS Versailles 388 867 426. Les informations sur les risques auxquels ce bien est exposé sont disponibles sur le site Géorisques : www.georisques.gouv.fr Cette annonce a été créée et diffusée avec le logiciel VITAHOME. Contactez Christophe PEREIRA au 06 09 08 60 37 ou au 01 39 83 27 47 (Maisons Sésame - Agence d'Eaubonne).











