

- Prix
- 298 132 €
Maison neuve • Boussy-Saint-Antoine (91)
- Nom et prix
- Terrain à bâtir Boussy-Saint-Antoine (91800) • 298 132 €
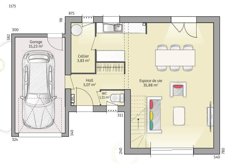
VENTE d'une maison T4 (60 m²) à Boussy-Saint-Antoine Paris à 30 min (RER D) - À découvrir bénéficiant d'un emplacement d'exception dans Boussy-Saint-Antoine (91800) : maison neuve 4 pièces en vente, 60 m² sur 353 m² de terrain. Conçue de plain-pied, elle dispose de deux chambres, d'une cuisine et d'une salle de bains. Proche RER D (Boussy-Saint-Antoine), gare (Boussy-Saint-Antoine), établissements scolaires, tennis, bassin de natation, bowling, boulangeries, commerces, supermarché, bureau de poste et épicerie. Paris à 23 km. Cette maison de 4 pièces est proposée à l'achat pour 298 132 € ( hors frais de notaires prévoir env 12 500 €), hors décoration, revêtements et adaptations aux sols éventuelles), branchements raccordements, enlèvements des terres compris Idéale Première acquisition car maison évolutive si la famille s'agrandit, ou famille monoparentale Maison à très basse consommation, Réalisation en brique de terre cuite, isolation intérieure renforcée bio ressourcée, pompe à chaleur, domotique... toutes assurances comprises ' dommage ouvrage'... Contactez votre conseiller Jean Jacques des maisons BALENCY agence de la ville du bois au 07 77 16 46 73 ou au 01 64 49 21 13 Maisons Balency La Ville-du-Bois vous accompagne à toutes les étapes de votre projet et dans toutes vos démarches.











