
Maison neuve • Écouis (27)
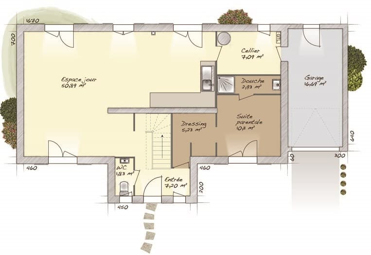
VENTE : maison de 6 pièces (133 m²) à Écouis MAISON 6 PIÈCES NEUVE - PROCHE DE ROUEN Maison à étage sous combles aménagés de 133m² habitables. Jolie surface qui se compose d'une grande pièce de vie lumineuse avec cuisine ouverte, un cellier donnant sur le garage, une entrée fermée avec un WC indépendant et des rangements, ainsi qu'un bureau au RDC. A l'étage, vous trouverez 3 chambres spacieuses, dont une suite parentale avec dressing et salle d'eau privative. Une seconde salle de bain pour rendre le tout plus fonctionnel et un 2nd WC séparé. La maison dispose de nombreuses prestations de qualité, de finitions soignées, un grand confort avec son chauffage par pompe à chaleur, de jolies menuiseries en alu, volets roulants électriques et centralisés... toutes ces options qui rendent la vie agréable sont à découvrir avec ce modèle. Contactez rapidement Karen GOHIER des Maisons Balency de LOUVIERS au 06 71 52 61 13 pour plus de renseignement sur cette maison, ou pour toute autre demande concernant votre projet de construction.
Proposé par MAISONS BALENCY - YVELINES










