

- Prix
- 152 000 €
Maison neuve • Montastruc (82)
- Nom et prix
- Terrain à bâtir Montastruc (82130) • 152 000 €
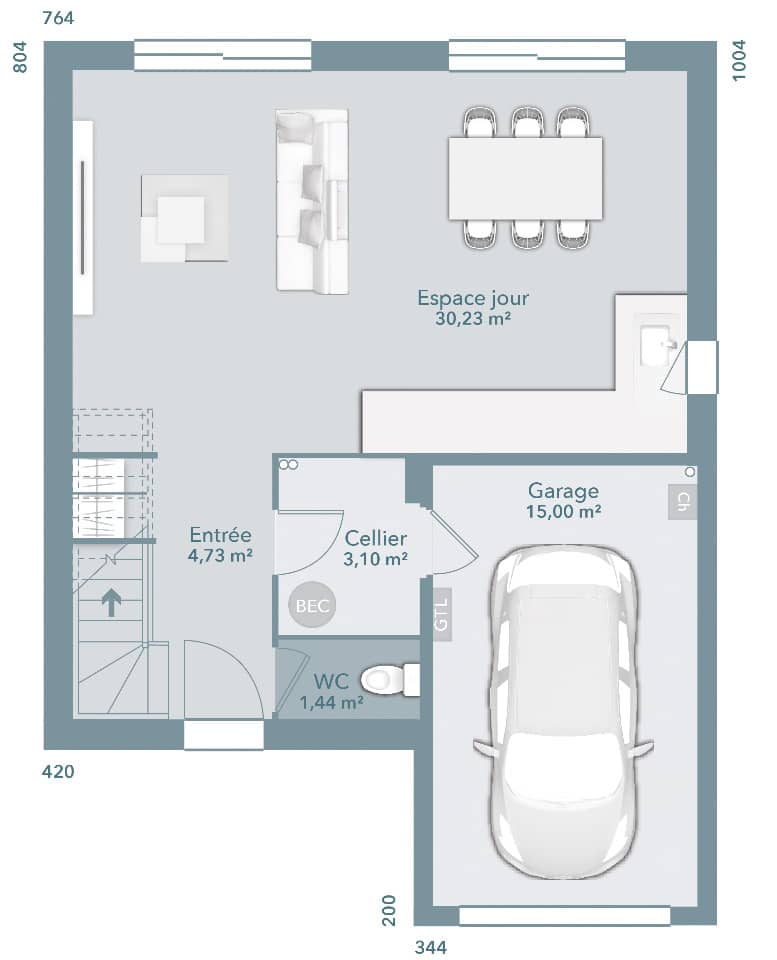
Votre agence Maisons France Confort d'AUCAMVILLE vous propose ce projet maison + terrain à MONTASTRUC dans le 82. Cette maison sur plan à conception traditionnelle sera parfaitement fonctionnelle pour ses occupants. Le modèle est PPGA de 70m² avec un garage accolé en option. Ce modèle dispose d'une pièce de vie de 26 m² comprenant le salon et la cuisine, deux chambres, une salle de bains et un cellier. Elle se trouve sur une parcelle de 1500 m² à 5 minutes des commodités et à 10 minutes de Montauban. Pour toutes informations, contactez l'agence MAISONS FRANCE CONFORT d'AUCAMVILLE au 05 34 43 84 38 Xavier FEUGUEUR. PRIX : 152 000 € HF










